




$187,490
39 Jones Creek Circle
Greer, SC 29650
About This Property
This Property Has Been Sold
This property sold 7 years ago and is no longer available for purchase.
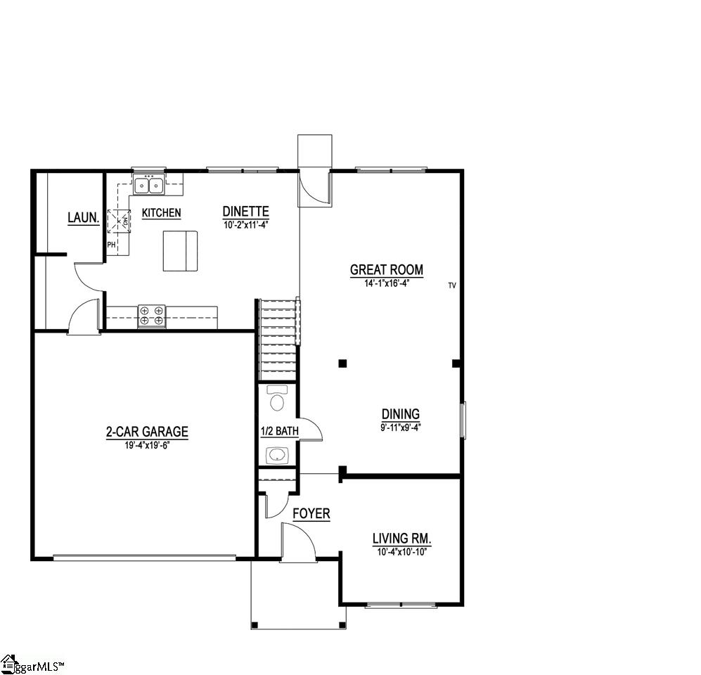
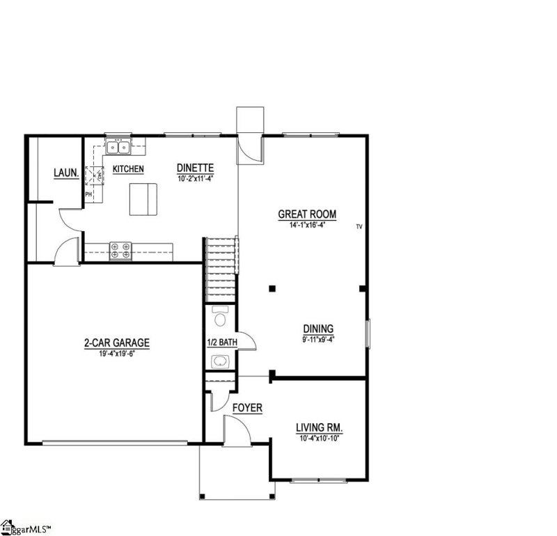
View active listings in Jones Creek Gardens →2304-B NEW two-story home with two-car garage! The main floor has a private living room in the front of the home, and an open dining room and great room that lead around to the dinette and kitchen. Half bath and laundry room also on main floor.
The 2nd floor features the owner's suite with full bath and walk in closet, as well as 3 additional bedrooms another full bath, and a loft! Completion date is December 2018 Haggle free pricing. No negotiation necessary.
Lowest price guaranteed.
GVL MLS # 1356875
Quick Facts
Time on Site
8 years ago
Property Type
Residential
Year Built
2018
HOA Fees
$100/mo
Property Details
Schools
Features & Amenities
Features:
- Ceiling Fan(s)
- Soaking Tub
- Walk-In Closet(s)
- Pantry
Location & Map
Map View
Loading map...
Additional Information
Community
- Common Areas
- Street Lights
- Lawn Maintenance
Lot & Land
- 1/2 Acre or Less
Tax Information
Interior Details
- Carpet
- Vinyl
- Dishwasher
- Free-Standing Electric Range
- Electric Water Heater
- 1st Floor
- Electric Dryer Hookup
- Laundry Room
- Ceiling Fan(s)
- Soaking Tub
- Walk-In Closet(s)
- Pantry
Parking & Garage
- Attached
- Paved
Exterior Features
- Composition
- Attached
- Paved
- Slab
- Vinyl Siding
H O A & Association
Property Overview
- Two
- Traditional
Utilities & Systems
- Public Sewer
- Central Air
- Electric
- Electric
- Cable Available
- Public
Listing Agent Information
The information is being provided by Greater Greenville MLS. Information deemed reliable but not guaranteed. Information is provided for consumers' personal, non-commercial use, and may not be used for any purpose other than the identification of potential properties for purchase. Copyright 2025 Greater Greenville MLS. All Rights Reserved.
You Might Also Like...
Interested in selling in Jones Creek Gardens?


