

$169,900
225 Galena Lane
Greer, SC 29651
About This Property
This Property Has Been Sold
This property sold 8 years ago and is no longer available for purchase.
View active listings in Canyon Ridge →** BUILDER INCENTIVE OF $2000 towards closing costs when using approved lender/attorney now until JUNE 30!! MOVE-IN-READY JULY 2018! ONLY A FEW LOTS LEFT IN THIS SUBDIVISION!
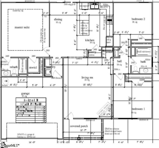
LOCAL builder and it shows! This 3bedroom/2 full bath home is the home you have been waiting for. Kitchen/Dining combination features upgraded smooth maple cabinetry with GRANITE COUNTER TOPS and well appointed ISLAND with plenty of room for bar stools.
Large great room features VAULTED ceiling. Owners suite features TREY ceiling, walk-in closet, and private bathroom. Guest bedrooms SPLIT from Owners suite.
GVL MLS # 1368502
Quick Facts
Time on Site
8 years ago
Property Type
Residential
Lot Size
12,196 sqft
Property Details
Schools
Features & Amenities
Features:
- Ceiling Fan(s)
- Vaulted Ceiling(s)
- Ceiling Smooth
- Tray Ceiling(s)
- Granite Counters
- Open Floorplan
- Countertops-Other
Location & Map
Map View
Loading map...
Additional Information
Community
- Other
Lot & Land
- 1/2 Acre or Less
Tax Information
Interior Details
- Carpet
- Vinyl
- Cooktop
- Dishwasher
- Disposal
- Electric Cooktop
- Electric Oven
- Microwave
- Electric Water Heater
- 1st Floor
- Walk-in
- Laundry Room
- Ceiling Fan(s)
- Vaulted Ceiling(s)
- Ceiling Smooth
- Tray Ceiling(s)
- Granite Counters
- Open Floorplan
- Countertops-Other
Parking & Garage
- Attached
- Paved
- Garage Door Opener
Exterior Features
- Architectural
- Attached
- Paved
- Garage Door Opener
- Crawl Space
- Deck
- Front Porch
- Vinyl Siding
H O A & Association
Property Overview
- One
- Ranch
Utilities & Systems
- Public Sewer
- Central Air
- Electric
- Cable Available
- Public
Listing Agent Information
The information is being provided by Greater Greenville MLS. Information deemed reliable but not guaranteed. Information is provided for consumers' personal, non-commercial use, and may not be used for any purpose other than the identification of potential properties for purchase. Copyright 2025 Greater Greenville MLS. All Rights Reserved.
You Might Also Like...
Interested in selling in Canyon Ridge?


