



$331,855
107 Crisp Cameo Court Lot 2
Greer, SC 29651
About This Property
This Property Has Been Sold
This property sold 4 years ago and is no longer available for purchase.
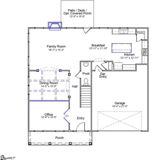
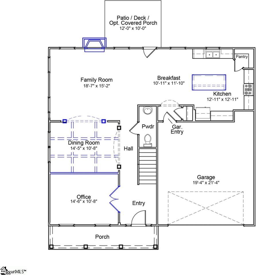
View active listings in Braeburn Orchard →You will appreciate the lovely details of Mungo Homes before you even enter the home, this home is boasting with curb appeal with its Charleston style double front porch, gable detail and oversized windows. Enter off of the large front porch into the formal entryway, to the left you will find a home office with French doors that overlook the front porch and yard. Continue past the stairs into the hallway that leads by the formal Dining room, complete with a chandelier and coffered beam celling.
Continue down the hallway to an open-concept family room, breakfast nook, and kitchen. The kitchen is complete with stainless steel appliances, quartz countertops, ceramic tile backsplash, staggered-height cabinets, a huge center island with pendent lights and tons of counter space. Downstairs, there's also a powder room for guests, gas log fireplace and a large covered patio off the rear of the home.
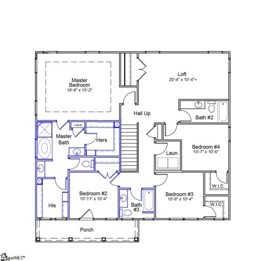
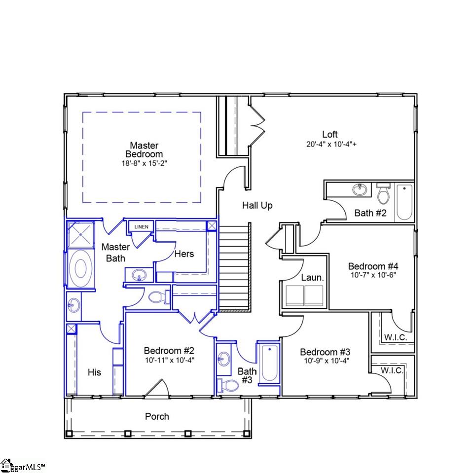
Upstairs, you will find ample space for a large family or plenty of guests with a large loft area, four bedrooms, and three bathrooms. Each of the bedrooms have a huge closet. The primary bedroom has a large in suite bath with separate tub and shower and double closets.
GVL MLS # 1442355
Quick Facts
Time on Site
5 years ago
Property Type
Residential
Year Built
2020
Lot Size
7,405 sqft
HOA Fees
$350/yr
Property Details
Schools
Features & Amenities
Features:
- High Ceilings
- Ceiling Fan(s)
- Ceiling Smooth
- Tray Ceiling(s)
- Open Floorplan
- Soaking Tub
- Walk-In Closet(s)
- Countertops – Quartz
- Pantry
- Radon System
Location & Map
Map View
Loading map...
Additional Information
Community
- Street Lights
- Sidewalks
Lot & Land
- 1/2 Acre or Less
- Few Trees
Tax Information
Interior Details
- Carpet
- Vinyl
- Gas Cooktop
- Dishwasher
- Disposal
- Oven
- Microwave
- Gas Water Heater
- Tankless Water Heater
- 2nd Floor
- Walk-in
- Electric Dryer Hookup
- Laundry Room
- High Ceilings
- Ceiling Fan(s)
- Ceiling Smooth
- Tray Ceiling(s)
- Open Floorplan
- Soaking Tub
- Walk-In Closet(s)
- Countertops – Quartz
- Pantry
- Radon System
- Gas Log
Parking & Garage
- Attached
- Paved
Exterior Features
- Architectural
- Attached
- Paved
- Slab
- Deck
- Front Porch
- Brick Veneer
- Vinyl Siding
H O A & Association
Property Overview
- Two
- Craftsman
Utilities & Systems
- Public Sewer
- Central Air
- Electric
- Forced Air
- Natural Gas
- Underground Utilities
- Public
Listing Agent Information
The information is being provided by Greater Greenville MLS. Information deemed reliable but not guaranteed. Information is provided for consumers' personal, non-commercial use, and may not be used for any purpose other than the identification of potential properties for purchase. Copyright 2025 Greater Greenville MLS. All Rights Reserved.
You Might Also Like...
Interested in selling in Braeburn Orchard?


