


Brockman Farms
1/3
$290k
Brockman Farms
SOLD
$290k
$289,900
Sold: $284,990-2%
1016 Bridlebrook Trail
Greer, SC 29388
4Beds
2Baths
2,174Sq Ft
2022Built
About This Property
This Property Has Been Sold
This property sold 3 years ago and is no longer available for purchase.
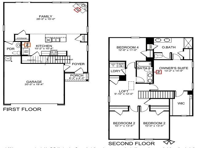
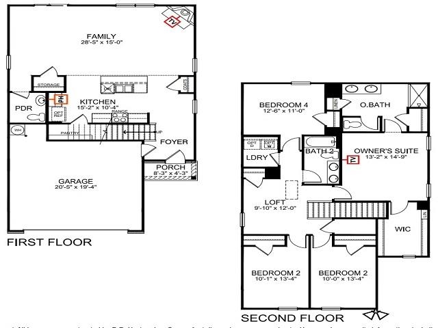
View active listings in Brockman Farms →Move In READY NOW! The Elston is a 2,174 sq. ft.
, 4 bedroom, 2.5 bath with a spacious loft. This open concept floor plan features a large 29 x 15 family room with gas log fireplace.
Kitchen has a large island, granite counters, stainless steel appliances. Perfect floor plan for those who enjoy entertaining. The owners suite is 13 x 15, large enough to easily accommodate a king size bed, vaulted ceiling and large walk-in closet.
SPN MLS # 290811
Quick Facts
Time on Site
4 years ago
Property Type
Residential
Year Built
2022
Lot Size
6,098 sqft
Price/Sq.Ft.
$133
Property Details
Bedrooms:
4
Bathrooms:
2
Living Area:
2,174 SqFt
Total Area:
2,174 SqFt
Sub-Type:
SingleFamilyResidence
Schools
Elementary:
Reidville
Middle:
Florence Chapel
High:
Byrnes High
School assignments may change. Contact the school district to confirm.
Features & Amenities
Features:
- Attic Stairs Pulldown
- Fireplace
- Walk-In Closet(s)
- Ceiling - Smooth
- Solid Surface Counters
Location & Map
Map View
Loading map...
Additional Information
Basement
Finished Sq Ft Below Grade
0
Security
Security Features
- Smoke Detector(s)
Community
Community Features
- Common Areas
- Street Lights
- Playground
- Pool
Lot & Land
Lot Features
- Level
Lot Dimensions
122x68
Lot Size ( Acres)
0.14
Primary Suite
Features
- Double Vanity
- Bath - Full
- Shower Only
- Walk-in Closet
Interior Details
Flooring
- Carpet
- Vinyl
Appliances
- Dishwasher
- Disposal
- Microwave
- Gas Cooktop
- Gas Oven
Specialty Rooms
Loft
Window Features
- Tilt-Out
Interior Features
- Attic Stairs Pulldown
- Fireplace
- Walk-In Closet(s)
- Ceiling - Smooth
- Solid Surface Counters
Fireplace Features
- Gas Log
New Construction
Builder
D.R. Horton
Parking & Garage
Garage Spaces
2
Parking Features
- Garage
- Garage Door Opener
Exterior Features
Roof
- Composition
Storage
Garage
Driveway
Paved-Concrete
Foundation Details
- Slab
Construction Materials
- Brick Veneer
Patio & Porch Features
- Patio
H O A & Association
Fee Includes
- Common Area
- Pool
- Recreation Facility
- Street Lights
Mandatory H O A
Yes
Association Fee
525
Property Overview
County
Spartanburg
Levels
- Two
Subdivision
Brockman Farms
Approximate Age
Under Construction
School District
5 Sptbg Co
Architectural Style
- Traditional
Main Level Bedrooms
0
Main Level Bathrooms
1
Utilities & Systems
Sewer
- Public Sewer
Cooling
- Central Air
Heating
- Forced Air
Gas Company
CPW Greer
Cooling Fuel
Electricity
Heating Fuel
Gas - Natural
Water Heater
Tankless
Water Source
- Public
Water Company
SJWD
Garbage Pickup
Private
Electric Company
Duke
Listing Agent Information
Listing Courtesy
MICHAEL McKEEL of D.R. Horton
Request Showing From Palmetto Park Realty Team
Spartanburg: (864) 757-4000
You Might Also Like...
Interested in selling in Brockman Farms?


