




$411,500
119 Divot Trail
About This Property
This Property Has Been Sold
This property sold 2 years ago and is no longer available for purchase.
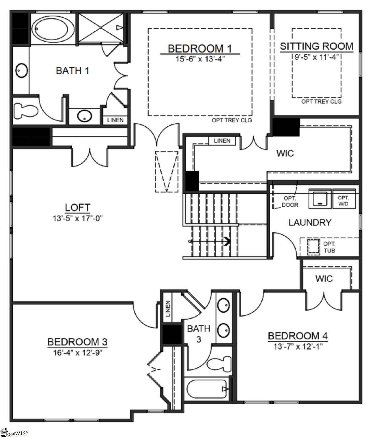
View active listings in Hunters Creek →The Hampshire is perfect if space is what you are looking for. This Beautiful 2 story, 4-bedroom, 3 bath home has over-sized rooms and lots of closet space. This open concept plan has a large Great Room with Gas Log Fireplace, a Gourmet Kitchen featuring a Large Island with Quartz Counter-tops, Tile Back-splash and Stainless-Steel appliances, including a gas range, double wall ovens, a built in Microwave and Dishwasher.
A Butler's Pantry connects the HUGE Walk-In Pantry to the Formal Dining room. A guest bedroom and full bath complete the downstairs. Upstairs, you will be pleasantly surprised at the size of the rooms.
The Owner's Suite comes with its own Sitting Room and Massive Dual Sided Walk-In Closet! The Owner's Bath has separate vanities, with quartz countertops, an Over-sized Tile Shower and separate Soaking Tub. Two very Large secondary bedrooms, a hall bath with double sinks, a Large, Open Loft/Bonus area and an a massive, Laundry Room complete the upstairs.
GVL MLS # 1501147
Quick Facts
Time on Site
3 years ago
Property Type
Residential
Lot Size
34,848 sqft
Property Details
Schools
Features & Amenities
Location & Map
Map View
Loading map...
Additional Information
Agent Contacts
- Greenville: (864) 757-4000
- Simpsonville: (864) 881-2800
Community & H O A
- HOA Mgmt Transfer Fee
- Subdivision Transfer Fee
Room Dimensions
Property Details
- Cul-de-Sac
- Level
Exterior Features
- Hardboard Siding
- Stone
- Tilt Out Windows
- Windows-Insulated
Interior Features
- 2nd Floor
- Walk-in
- Carpet
- Ceramic Tile
- Laminate Flooring
- Cook Top-Gas
- Dishwasher
- Double Oven
- Microwave-Built In
- Laundry
- Loft
- Sun Room
- Attic Stairs Disappearing
- Ceiling Smooth
- Open Floor Plan
- Smoke Detector
- Countertops – Quartz
- Pantry – Walk In
- Radon System
Systems & Utilities
- Gas
- Tankless
- Central Forced
- Electric
- Forced Air
- Natural Gas
Showing & Documentation
- Warranty Furnished
- House Plans
- Restric.Cov/By-Laws
- List Agent Present
- Restricted Hours
- Call Listing Office/Agent
- Copy Earnest Money Check
- Pre-approve/Proof of Fund
- Specified Sales Contract
The information is being provided by Greater Greenville MLS. Information deemed reliable but not guaranteed. Information is provided for consumers' personal, non-commercial use, and may not be used for any purpose other than the identification of potential properties for purchase. Copyright 2025 Greater Greenville MLS. All Rights Reserved.
You Might Also Like...
Interested in selling in Hunters Creek?


