

$371,900
New 5 Bed Greenwood Home in Seven Oaks w/ Sunroom & Amenities
Greenwood, SC 29649
About This Property
This Property Has Been Sold
This property sold 8 months ago and is no longer available for purchase.
View active listings in Seven Oaks →Welcome to Seven Oaks, a new home community in the vibrant city of Greenwood. This neighborhood has seven distinct floorplans, ranging from single-story to two-story designs, featuring 3 to 5 bedrooms, up to 4 bathrooms, and 2-car garages. Families will appreciate amenities such as a pool, cabana, and playground.
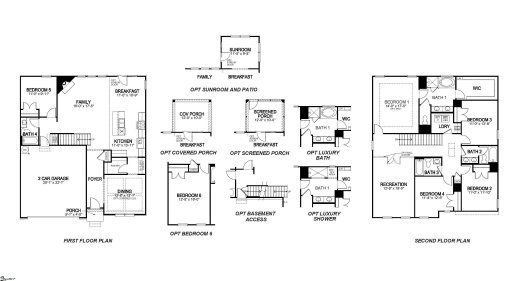
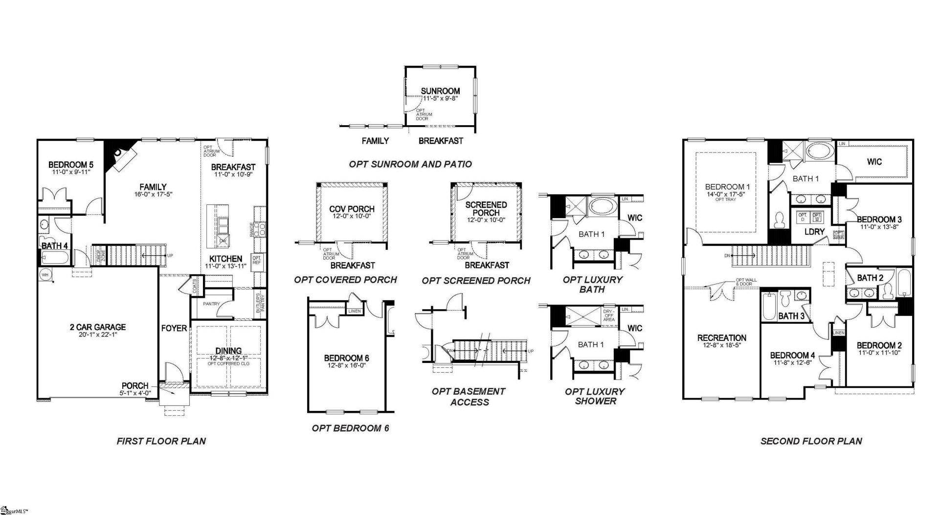
This home presents the Summit floorplan, a spacious two-story home featuring five bedrooms, four bathrooms, a sunroom, and a two-car garage, providing ample space for your family. Upon entering, you ll be greeted by a grand foyer that leads into the heart of the home. The open floor plan creates an airy and inviting atmosphere, with the living room connecting seamlessly to the kitchen and breakfast area.
The chef s kitchen is equipped with modern appliances, a large center island, ample storage space, and a pantry, making it perfect for both cooking and casual dining. Adjacent to the living room is a convenient bedroom on the main level. The primary suite is a luxurious retreat, featuring an en-suite bathroom with dual vanities, a shower, soaking tub, and a large walk-in closet.
GVL MLS # 1555977
Quick Facts
Time on Site
1 year ago
Property Type
Residential
Year Built
2025
Lot Size
6,969 sqft
Price/Sq.Ft.
$127
HOA Fees
$750/yr
Property Details
Schools
Features & Amenities
Features:
- High Ceilings
- Ceiling Smooth
- Tray Ceiling(s)
- Countertops-Solid Surface
- Open Floorplan
- Walk-In Closet(s)
- Pantry
- Radon System
Location & Map
Map View
Loading map...
Additional Information
Community
- Common Areas
- Street Lights
- Playground
- Pool
- Other
Lot & Land
- 1/2 Acre or Less
Tax Information
Interior Details
- Carpet
- Ceramic Tile
- Luxury Vinyl
- Gas Cooktop
- Dishwasher
- Disposal
- Self Cleaning Oven
- Oven
- Gas Oven
- Microwave
- Gas Water Heater
- Tankless Water Heater
- Sink
- 2nd Floor
- Walk-in
- Laundry Room
- High Ceilings
- Ceiling Smooth
- Tray Ceiling(s)
- Countertops-Solid Surface
- Open Floorplan
- Walk-In Closet(s)
- Pantry
- Radon System
- Gas Log
Parking & Garage
- Attached
- Concrete
- Garage Door Opener
Exterior Features
- Architectural
- Attached
- Concrete
- Garage Door Opener
- Slab
- Patio
- Front Porch
- Rear Porch
- Hardboard Siding
- Stone
H O A & Association
- Pool
- Recreation Facilities
- Street Lights
- By-Laws
- Restrictive Covenants
Property Overview
- Two
- Traditional
Utilities & Systems
- Public Sewer
- Central Air
- Electric
- Damper Controlled
- Forced Air
- Natural Gas
- Damper Controlled
- Underground Utilities
- Cable Available
- Public
Listing Agent Information
The information is being provided by Greater Greenville MLS. Information deemed reliable but not guaranteed. Information is provided for consumers' personal, non-commercial use, and may not be used for any purpose other than the identification of potential properties for purchase. Copyright 2025 Greater Greenville MLS. All Rights Reserved.
You Might Also Like...
Interested in selling in Seven Oaks?


