


$440,514
8 Glassy Wing Circle
Greenville, SC 29607
About This Property
This Property Has Been Sold
This property sold 10 years ago and is no longer available for purchase.
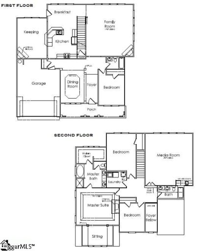
View active listings in Enclave At Parkins Mill →Brand new home ready January 2016! The Florence, at the end of a cul-de-sac lot, features a spacious kitchen with granite countertops, pantry and eat in nook with adjacent keeping room is all open to large Family room with warming fireplace. Enjoy holiday dinners in the Formal dining room.
Guests will have plenty or privacy in the main floor bedroom with a full bath. The Master retreat has a comfortable sitting room, cozy fireplace, huge walk in closet and a spa like bath with his and hers sinks, soaking tub and separate shower. 2 additional bedrooms, open loft area and private media room gives you all the space you need.
For added convenience the Laundry room is located on the upper level as well. Love living at Enclave at Parkins Mill conveniently located close to shopping, entertainment and dining.
GVL MLS # 1311363
Quick Facts
Time on Site
10 years ago
Property Type
Residential
Year Built
2015
HOA Fees
$550/yr
Property Details
Schools
Features & Amenities
Features:
- 2 Story Foyer
- Ceiling Fan(s)
- Ceiling Smooth
- Granite Counters
- Walk-In Closet(s)
- Wet Bar
Location & Map
Map View
Loading map...
Additional Information
Tax Information
Interior Details
- Carpet
- Ceramic Tile
- Wood
- Gas Cooktop
- Dishwasher
- Disposal
- Microwave
- Refrigerator
- Electric Water Heater
- Walk-in
- 2 Story Foyer
- Ceiling Fan(s)
- Ceiling Smooth
- Granite Counters
- Walk-In Closet(s)
- Wet Bar
- Gas Log
Parking & Garage
- Attached
- Paved
Exterior Features
- Architectural
- Attached
- Paved
- Slab
- Concrete
- Stone
- Wood Siding
H O A & Association
Property Overview
- Two
- Craftsman
Utilities & Systems
- Public Sewer
- Central Air
- Forced Air
- Public
Listing Agent Information
The information is being provided by Greater Greenville MLS. Information deemed reliable but not guaranteed. Information is provided for consumers' personal, non-commercial use, and may not be used for any purpose other than the identification of potential properties for purchase. Copyright 2025 Greater Greenville MLS. All Rights Reserved.
You Might Also Like...
Interested in selling in Enclave At Parkins Mill?


