




$599,000
708 Anderson Road Lot 9
Greenville, SC 29601
About This Property
This Property Has Been Sold
This property sold 2 years ago and is no longer available for purchase.
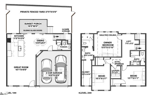
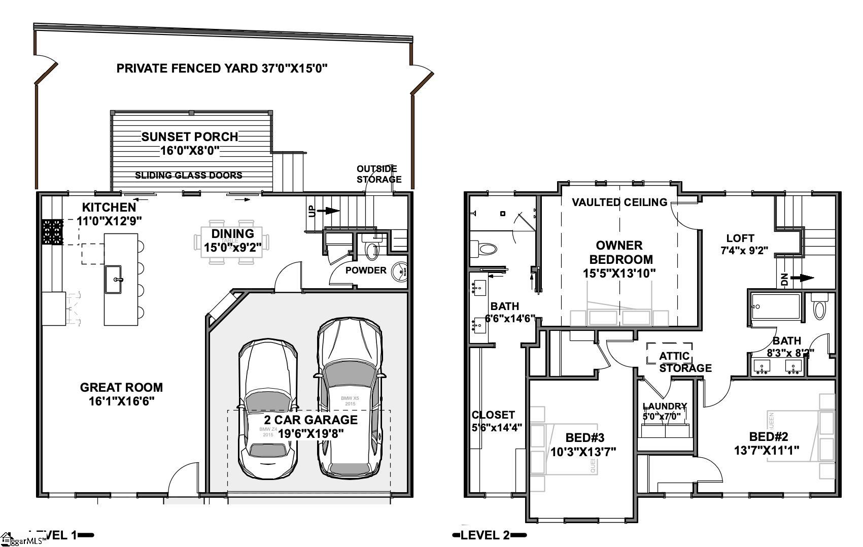
View active listings in Bohemian Cottages →Bohemian Cottages, “More House than Townhouse”, are located in the historic Sterling Community, within a 15 minute walk to Fluor Field and South Main Street in downtown Greenville, SC. With an abundance of windows and doors for great light, side by side 2 car garage, functional entertaining porch, private fenced back yard, this is not your typical townhouse! With 37 years of home building experience, we put our knowledge into practice with each project, and Bohemian Cottages is no exception.
Upon entering the front door you will walk into the open floor plan great room with plenty of room for family and friends. Just beyond the great room is the kitchen and dining room with double 9' sliding glass doors that will take you out to the relaxing Sunset Porch. On the second level you will find the Owner bedroom with a vaulted ceiling, ensuite bathroom with a double vanity, walk-in shower, and a spacious walk-in closet.
There are an additional 2 bedrooms, a full bathroom, laundry, and a loft area on the second level. There is attic storage with pull down steps and outside storage for all your needs. Just off the Sunset Porch is a spacious private yard for entertaining family and friends.
GVL MLS # 1507343
Quick Facts
Time on Site
3 years ago
Property Type
Residential
Year Built
2024
Price/Sq.Ft.
$321
HOA Fees
$260/mo
Property Details
Schools
Features & Amenities
Features:
- High Ceilings
- Ceiling Fan(s)
- Vaulted Ceiling(s)
- Ceiling Smooth
- Open Floorplan
- Walk-In Closet(s)
- Countertops – Quartz
- Pantry
- Radon System
Location & Map
Map View
Loading map...
Additional Information
Community
- Sidewalks
- Lawn Maintenance
Lot & Land
- 1/2 Acre or Less
- Corner Lot
- Sidewalk
- Few Trees
- Sprklr In Grnd-Full Yard
Tax Information
Interior Details
- Wood
- Concrete
- Dishwasher
- Disposal
- Free-Standing Gas Range
- Refrigerator
- Gas Oven
- Microwave
- Range Hood
- Gas Water Heater
- Tankless Water Heater
- 2nd Floor
- Walk-in
- Electric Dryer Hookup
- Washer Hookup
- Laundry Room
- High Ceilings
- Ceiling Fan(s)
- Vaulted Ceiling(s)
- Ceiling Smooth
- Open Floorplan
- Walk-In Closet(s)
- Countertops – Quartz
- Pantry
- Radon System
- Gas Log
Parking & Garage
- Attached
- Concrete
- Garage Door Opener
- Key Pad Entry
Exterior Features
- Architectural
- Attached
- Concrete
- Garage Door Opener
- Key Pad Entry
- Slab
- Deck
- Rear Porch
- Other
H O A & Association
- Common Area Ins.
- Maintenance Grounds
- Pest Control
- Trash
- By-Laws
- Yard Irrigation
Property Overview
- Two
- Contemporary
- Craftsman
Utilities & Systems
- Public Sewer
- Central Air
- Electric
- Damper Controlled
- Forced Air
- Natural Gas
- Damper Controlled
- Underground Utilities
- Public
Listing Agent Information
The information is being provided by Greater Greenville MLS. Information deemed reliable but not guaranteed. Information is provided for consumers' personal, non-commercial use, and may not be used for any purpose other than the identification of potential properties for purchase. Copyright 2025 Greater Greenville MLS. All Rights Reserved.
You Might Also Like...
Interested in selling in Bohemian Cottages?


