


$465,990
7 Thurlow Court
Greenville, SC 29615
About This Property
This Property Has Been Sold
This property sold 15 days ago and is no longer available for purchase.
View active listings in Pelham Crossing →Welcome to Pelham Crossing! New townhomes in Greenville off of Pelham Road. The Lawson is a brand new home design in Greenville and gives the perfect blend of comfort and functionality!
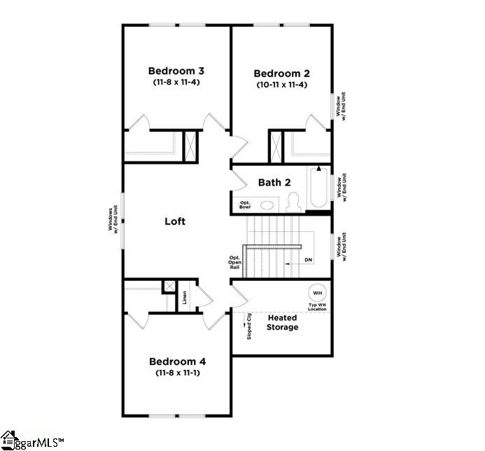
The well appointed foyer leads you into the open concept kitchen featuring an 8 ft island with sink for additional prep space and seating, beautiful white cabinetry, Quartz countertops, tiled backsplash, under cabinet lighting and stainless steel appliances including a gas range/oven and refrigerator. The high ceilings and tall windows give the area lots of natural light and leads out to the covered back porch overlooking the more private backyard. The Primary Suite, conveniently located off the living room, includes an en suite bath with double vanities, a generous walk-in closet, and a beautifully tiled shower with a frameless glass door.
The laundry room with washer/dryer included and powder room complete the main level. The Oak staircase leads upstairs to the loft, a great area for extra living space or even a home office. Three additional bedrooms, all with walk in closets, a hall bath with double sinks and an heated storage space finish out the upstairs.
GVL MLS # 1580244
Quick Facts
Time on Site
1 month ago
Property Type
Residential
Year Built
2026
Lot Size
1,742 sqft
Price/Sq.Ft.
$240
Property Details
Schools
Features & Amenities
Location & Map
Map View
Loading map...
Additional Information
Community
- Lights
- Lawn Maintenance
Lot & Land
Primary Suite
- Double Sink
- Full Bath
- Primary on Main Lvl
- Shower Only
- Walk-in Closet
Specialty Rooms
Interior Details
- Carpet
- Luxury Vinyl Tile/Plank
- Dishwasher
- Disposal
- Dryer
- Stand Alone Range-Gas
- Oven-Self Cleaning
- Refrigerator
- Washer
- Oven-Gas
- Microwave-Built In
- Microwave-Convection
- 1st Floor
- Walk-in
- Dryer - Electric Hookup
- Attic Stairs Disappearing
- Cable Available
- Ceiling 9ft+
- Ceiling Smooth
- Open Floor Plan
- Smoke Detector
- Walk In Closet
- Countertops - Quartz
- Pantry - Closet
- Smart Systems Pre-Wiring
Parking & Garage
- Door Opener
- Attached Garage 2 Cars
Exterior Features
- Garage
- Other/See Remarks
- Porch-Front
- Tilt Out Windows
- Porch-Covered Back
- Under Ground Irrigation
H O A & Association
- Lawn Maintenance
- Street Lights
- Trash Service
- Yard Irrigation
Property Overview
Utilities & Systems
Listing Agent Information
The information is being provided by Greater Greenville MLS. Information deemed reliable but not guaranteed. Information is provided for consumers' personal, non-commercial use, and may not be used for any purpose other than the identification of potential properties for purchase. Copyright 2025 Greater Greenville MLS. All Rights Reserved.
You Might Also Like...
Interested in selling in Pelham Crossing?


