


$319,900
7 Brayfield Trail
Greenville, SC 29607
About This Property
This Property Has Been Sold
This property sold 2 years ago and is no longer available for purchase.
View active listings in Alston Chase →Brand new, energy-efficient home available NOW! Elemental 2 Interior Package. Kick your feet up after a long day on the back patio.
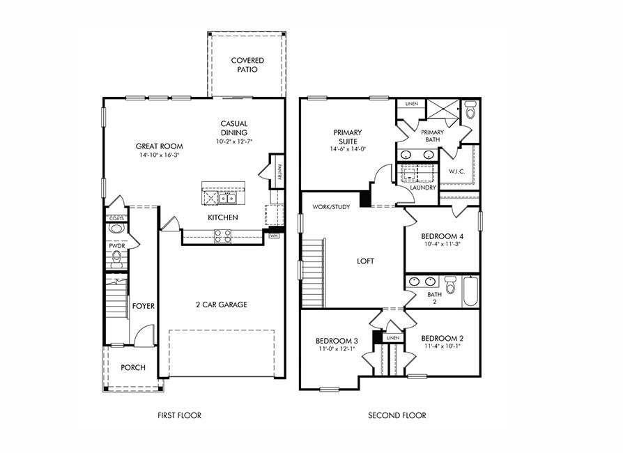
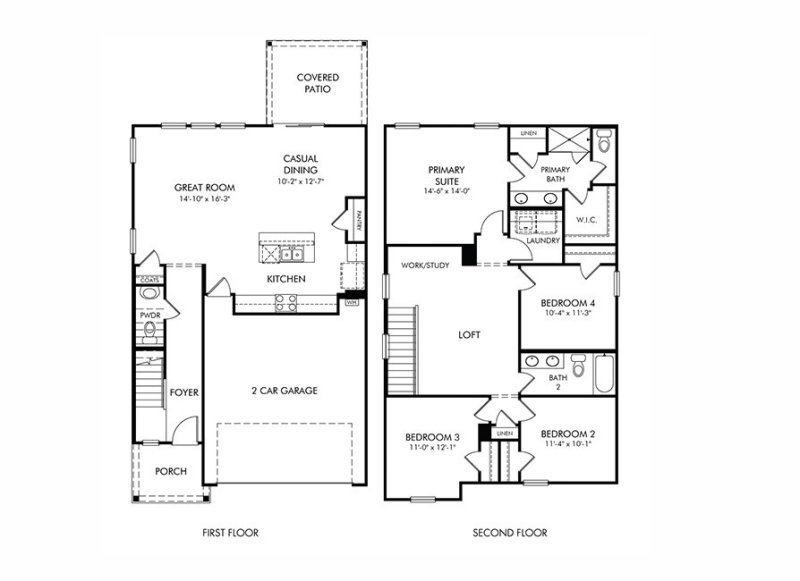
Inside, the kitchen island overlooks the open-concept great room. Upstairs, the kids will love the loft and study nook. The primary suite features a spacious ensuite bath and walk-in closet.
Alston Chase brings new energy-efficient, open-concept designs featuring spacious family rooms, kitchens with large islands, and flexible living areas. And, with low monthly payments and a simpler buying process, Alston Chase offers easier, more affordable ways into the home of your dreams. Each of our homes is built with innovative, energy-efficient features designed to help you enjoy more savings, better health, real comfort and peace of mind.
WUM MLS # 1046460080
Quick Facts
Time on Site
2 years ago
Property Type
Residential
Year Built
2024
Price/Sq.Ft.
$165
Property Details
Schools
Features & Amenities
Location & Map
Map View
Loading map...
Additional Information
Lot & Land
- OutsideCityLimits
- Subdivision
Community & H O A
- CommonGroundsArea
- TrailsPaths
Tax Information
Parking & Garage
- Attached
- Garage
Property Details
Exterior Features
- Architectural
- Shingle
- CementSiding
- StoneVeneer
Interior Features
- Carpet
- CeramicTile
- Vinyl
- ConvectionOven
- Dishwasher
- Disposal
- GasRange
- DualSinks
- Fireplace
- ShowerOnly
- UpperLevelPrimary
- WalkInClosets
- Loft
Systems & Utilities
- CentralAir
- Electric
- Central
- Electric
- ElectricityAvailable
- NaturalGasAvailable
- SewerAvailable
- UndergroundUtilities
- WaterAvailable
Listing Agent Information
This information is deemed reliable, but not guaranteed. Neither, the Western Upstate Association of REALTORS®, Inc. or Western Upstate Multiple Listing Service of South Carolina Inc., nor the listing broker, nor their agents or subagents are responsible for the accuracy of the information. The buyer is responsible for verifying all information. This information is provided by the Western Upstate Association of REALTORS®, Inc. and Western Upstate Multiple Listing Service of South Carolina, Inc. for use by its members and is not intended for the use for any other purpose. Information is provided for consumers' personal, non-commercial use, and may not be used for any purpose other than the identification of potential properties for purchase. The data relating to real estate for sale on this Web site comes in part from the Broker Reciprocity Program of the Western Upstate Association of REALTORS®, Inc. and the Western Upstate Multiple Listing Service, Inc.
You Might Also Like...
Interested in selling in Alston Chase?


