


$386,380
6 Wild Indigo Circle
Greenville, SC 29680
About This Property
This Property Has Been Sold
This property sold 9 years ago and is no longer available for purchase.
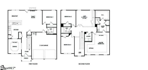
View active listings in Enclave At Parkins Mill →Brand new home ready December 2016! The Litchfield features a bright kitchen with granite countertops, pantry and eat in dining open to Great room with hardwood flooring. Formal Dining room and main floor guest bedroom.
Large Master suite with huge walk in closet and sitting room. Roomy additional bedrooms, airy open loft area and upper level Laundry room for added convenience. Love living at Enclave at Parkins Mill located close to downtown Greenville, schools, shopping and entertainment.
GVL MLS # 1332100
Quick Facts
Time on Site
9 years ago
Property Type
Residential
Year Built
2016
Lot Size
6,969 sqft
HOA Fees
$550/yr
Property Details
Schools
Features & Amenities
Features:
- 2 Story Foyer
- High Ceilings
- Ceiling Fan(s)
- Ceiling Smooth
- Tray Ceiling(s)
- Granite Counters
- Open Floorplan
- Soaking Tub
- Walk-In Closet(s)
- Split Floor Plan
Location & Map
Map View
Loading map...
Additional Information
Community
- Street Lights
- Sidewalks
Lot & Land
- Cul-De-Sac
- Few Trees
Tax Information
Interior Details
- Carpet
- Ceramic Tile
- Wood
- Gas Cooktop
- Dishwasher
- Disposal
- Microwave
- Convection Oven
- Oven
- Refrigerator
- Double Oven
- Gas Water Heater
- Tankless Water Heater
- 2nd Floor
- Walk-in
- Laundry Room
- 2 Story Foyer
- High Ceilings
- Ceiling Fan(s)
- Ceiling Smooth
- Tray Ceiling(s)
- Granite Counters
- Open Floorplan
- Soaking Tub
- Walk-In Closet(s)
- Split Floor Plan
- Gas Log
Parking & Garage
- Attached
- Paved
- Garage Door Opener
- Yard Door
Exterior Features
- Architectural
- Attached
- Paved
- Garage Door Opener
- Yard Door
- Slab
- Patio
- Hardboard Siding
- Stone
- Wood Siding
H O A & Association
Property Overview
- Two
- Craftsman
Utilities & Systems
- Public Sewer
- Electric
- Multi Units
- Electric
- Multi-Units
- Underground Utilities
- Cable Available
- Public
Listing Agent Information
The information is being provided by Greater Greenville MLS. Information deemed reliable but not guaranteed. Information is provided for consumers' personal, non-commercial use, and may not be used for any purpose other than the identification of potential properties for purchase. Copyright 2025 Greater Greenville MLS. All Rights Reserved.
You Might Also Like...
Interested in selling in Enclave At Parkins Mill?

