




$1,238,900
6 Carlingford Way
About This Property
New Construction | Semi Custom | Pinestone Builders | Highly Sought After Location | Nestled in the heart of Greenville’s sought-after Eastside, ASTER on Butler Springs Road is where inspired living meets exceptional craftsmanship. This boutique semi-custom community offers the rare opportunity to own a thoughtfully designed home in a prime location known for its scenic charm, walkability, and connection to everyday conveniences, with lawn maintenance included! Surrounded by mature trees and minutes from shopping, parks, and top schools, Aster blends the best of both worlds, a peaceful residential feel with access to all the vibrancy Greenville has to offer.
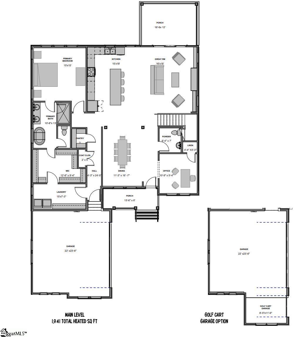
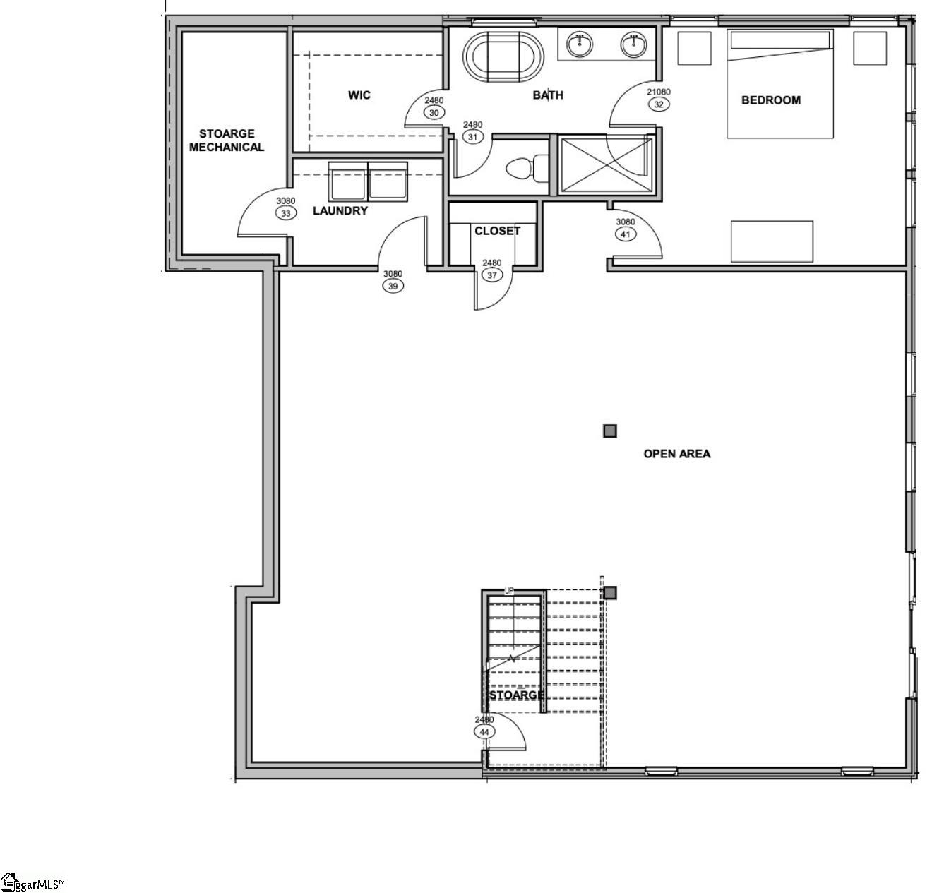
Whether it’s a stroll along the nearby Swamp Rabbit Trail, a short drive to downtown, or enjoying the local farmers market, life at Aster is rooted in balance, beauty, and belonging. Welcome to the beautifully designed Springfield Floorplan, offering a unique and functional courtyard layout that blends elegance, space, and flexibility. This thoughtfully crafted home features 5 bedrooms and 4 full bathrooms, including dual primary suites—one conveniently located on the main level, and a second in the fully finished basement, mirroring the main floor for multi-generational living or ultimate guest comfort.
The heart of the home is the open-concept main living area, where a gorgeous fireplace serves as the perfect centerpiece for entertaining and cozy evenings with friends and family. The second level boasts a spacious recreational bonus room, ideal for a playroom, media space, home gym, or additional lounge area. From the smart layout to the upscale finishes, this home is designed to impress.
GVL MLS # 1569500
Quick Facts
Time on Site
6 months ago
Property Type
Residential
Year Built
2026
Price/Sq.Ft.
$260
Property Details
Schools
Features & Amenities
Location & Map
Map View
Loading map...
Additional Information
Basement
- Full Finished
- Full
Community
Lot & Land
Primary Suite
- Double Sink
- Full Bath
- Primary on Main Lvl
- Shower-Separate
- Tub-Separate
- Walk-in Closet
Specialty Rooms
Interior Details
- Carpet
- Ceramic Tile
- Luxury Vinyl Tile/Plank
- Cook Top-Gas
- Dishwasher
- Disposal
- Oven(s)-Wall
- Microwave-Built In
- 1st Floor
- Basement
- Walk-in
- 2 Story Foyer
- Ceiling 9ft+
- Ceiling Fan
- Ceiling Cathedral/Vaulted
- Ceiling Smooth
- Countertops Granite
- Smoke Detector
- Walk In Closet
- Second Living Quarters
- Split Floor Plan
- Countertops - Quartz
- Dual Primary Bedrooms
- Pantry - Walk In
- Radon System
Parking & Garage
- Door Opener
- Courtyard Entry
- Attached Garage 2 Cars
- Key Pad Entry
- Driveway Parking
Exterior Features
- Attic
- Garage
- Basement
- Slab
- Basement
- Patio
- Porch-Front
- Porch-Other
- Tilt Out Windows
- Sprklr In Grnd-Full Yard
- Porch-Covered Back
H O A & Association
- Lawn Maintenance
- Street Lights
- By-Laws
- Restrictive Covenants
- Yard Irrigation
Property Overview
Utilities & Systems
- Central Forced
- Electric
- Gas
- Tankless
Listing Agent Information
The information is being provided by Greater Greenville MLS. Information deemed reliable but not guaranteed. Information is provided for consumers' personal, non-commercial use, and may not be used for any purpose other than the identification of potential properties for purchase. Copyright 2025 Greater Greenville MLS. All Rights Reserved.
