




$214,990
Brand New Greenville Townhome | Smart Features Near Downtown
Greenville, SC 29605
About This Property
This Property Has Been Sold
This property sold 7 months ago and is no longer available for purchase.
View active listings in Parkside Heights →4.99 Fixed Rate while using JET Home Loans. Located Just 7 Miles From Downtown Greenville.
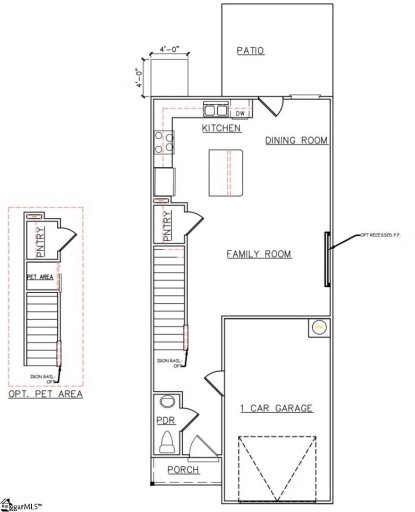
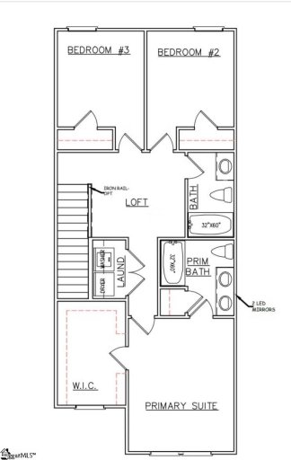
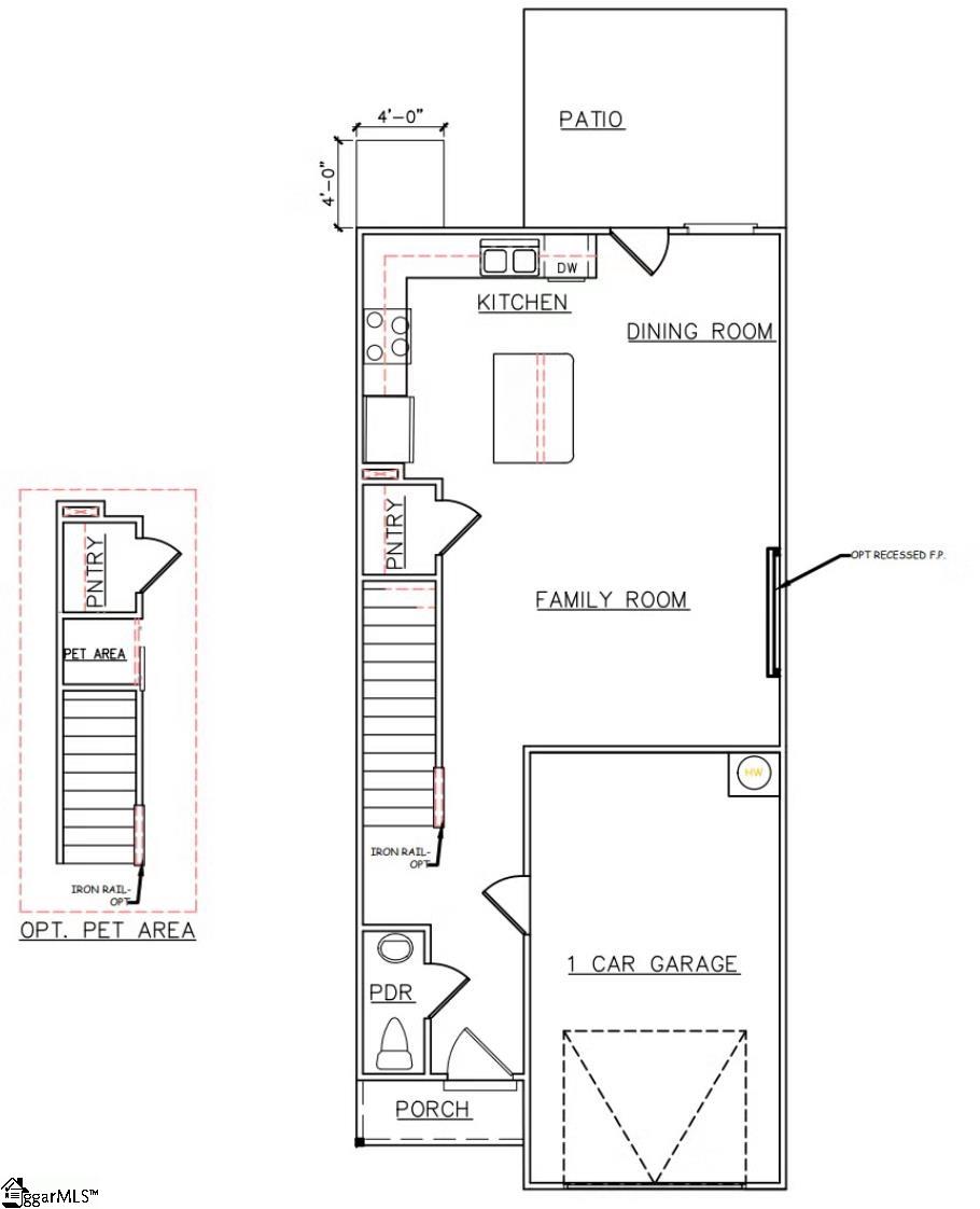
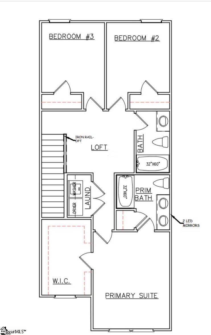
This plan is designed to maximize space and comfort. The modern, open-concept layout on the first floor is ideal for both relaxation and entertaining. The primary suite is thoughtfully situated on the second level, providing a serene retreat.
Upstairs, you'll also find two additional bedrooms, a loft area, a generous laundry room, and plenty of storage. Be sure to explore the sleek kitchen and the expansive family room that completes this exceptional home! Features include: Modern interior & exterior trim, Granite countertops, pendant lights & chandelier.
GVL MLS # 1540964
Quick Facts
Time on Site
1 year ago
Property Type
Residential
Year Built
2025
Lot Size
1,742 sqft
Price/Sq.Ft.
$152
HOA Fees
$2,100/yr
Property Details
Schools
Features & Amenities
Features:
- High Ceilings
- Ceiling Fan(s)
- Granite Counters
- Open Floorplan
- Walk-In Closet(s)
- Pantry
- Radon System
Location & Map
Map View
Loading map...
Additional Information
Community
- Street Lights
- Sidewalks
- Lawn Maintenance
Lot & Land
- 1/2 Acre or Less
- Sidewalk
Tax Information
Interior Details
- Carpet
- Luxury Vinyl
- Cooktop
- Dishwasher
- Electric Oven
- Microwave
- Electric Water Heater
- 2nd Floor
- Walk-in
- Laundry Room
- High Ceilings
- Ceiling Fan(s)
- Granite Counters
- Open Floorplan
- Walk-In Closet(s)
- Pantry
- Radon System
- Ventless
Parking & Garage
- Attached
- Paved
- Key Pad Entry
Exterior Features
- Composition
- Attached
- Paved
- Key Pad Entry
- Slab
- Patio
- Brick Veneer
- Vinyl Siding
H O A & Association
- Common Area Ins.
- Electricity
- Maintenance Structure
- Maintenance Grounds
- By-Laws
Property Overview
- Two
- Contemporary
Utilities & Systems
- Public Sewer
- Central Air
- Electric
- Electric
- Underground Utilities
- Cable Available
- Public
Listing Agent Information
The information is being provided by Greater Greenville MLS. Information deemed reliable but not guaranteed. Information is provided for consumers' personal, non-commercial use, and may not be used for any purpose other than the identification of potential properties for purchase. Copyright 2025 Greater Greenville MLS. All Rights Reserved.
You Might Also Like...
Interested in selling in Parkside Heights?


