


$283,990
Build Your Dream Ranch Home in Greenville - Quality New Construction
Greenville, SC 29611
About This Property
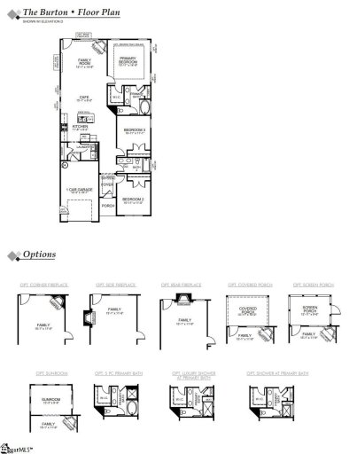
*To Be Built* Brand New Ranch! 3 bed, 2 bath, full sod yard! Enter through a beautiful foyer that takes you into the main living area at the back of the home.
Kitchen includes upgraded cabinetry, granite countertops and ss appliances. Primary bathroom includes a tiled shower or a five-piece bath, dual sinks and quartz countertops. Structured wiring package included.
Built in pest control system included. Finished garage is drywalled, painted and includes electrical outlets and lighting.
GVL MLS # 1553908
Quick Facts
Time on Site
1 year ago
Property Type
Residential
Lot Size
3,920 sqft
Price/Sq.Ft.
$192
HOA Fees
$475/yr
Property Details
Schools
Features & Amenities
Features:
- High Ceilings
- Ceiling Smooth
- Granite Counters
- Open Floorplan
- Countertops – Quartz
- Pantry
Location & Map
Map View
Loading map...
Additional Information
Community
- Street Lights
- Sidewalks
Lot & Land
- 1/2 Acre or Less
- Other
Tax Information
Interior Details
- Carpet
- Vinyl
- Dishwasher
- Disposal
- Self Cleaning Oven
- Electric Oven
- Range
- Range Hood
- Gas Water Heater
- Tankless Water Heater
- 1st Floor
- Walk-in
- Electric Dryer Hookup
- Laundry Room
- High Ceilings
- Ceiling Smooth
- Granite Counters
- Open Floorplan
- Countertops – Quartz
- Pantry
Parking & Garage
- Attached
- Paved
Exterior Features
- Composition
- Attached
- Paved
- Slab
- Vinyl Siding
H O A & Association
- Street Lights
Property Overview
- One
- Ranch
- Traditional
Utilities & Systems
- Public Sewer
- Central Air
- Electric
- Damper Controlled
- Forced Air
- Natural Gas
- Damper Controlled
- Underground Utilities
- Cable Available
- Public
Listing Agent Information
The information is being provided by Greater Greenville MLS. Information deemed reliable but not guaranteed. Information is provided for consumers' personal, non-commercial use, and may not be used for any purpose other than the identification of potential properties for purchase. Copyright 2025 Greater Greenville MLS. All Rights Reserved.


