



$479,900
428 Fiery Road
Greenville, SC 29607
About This Property
This Property Has Been Sold
This property sold 1 month ago and is no longer available for purchase.
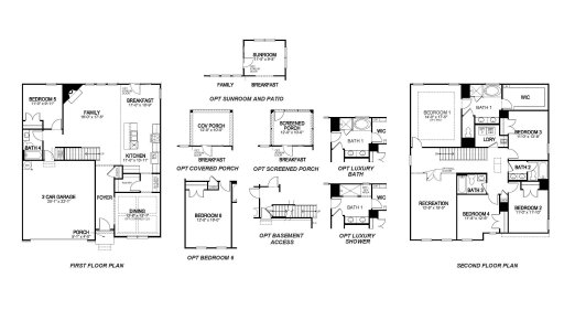
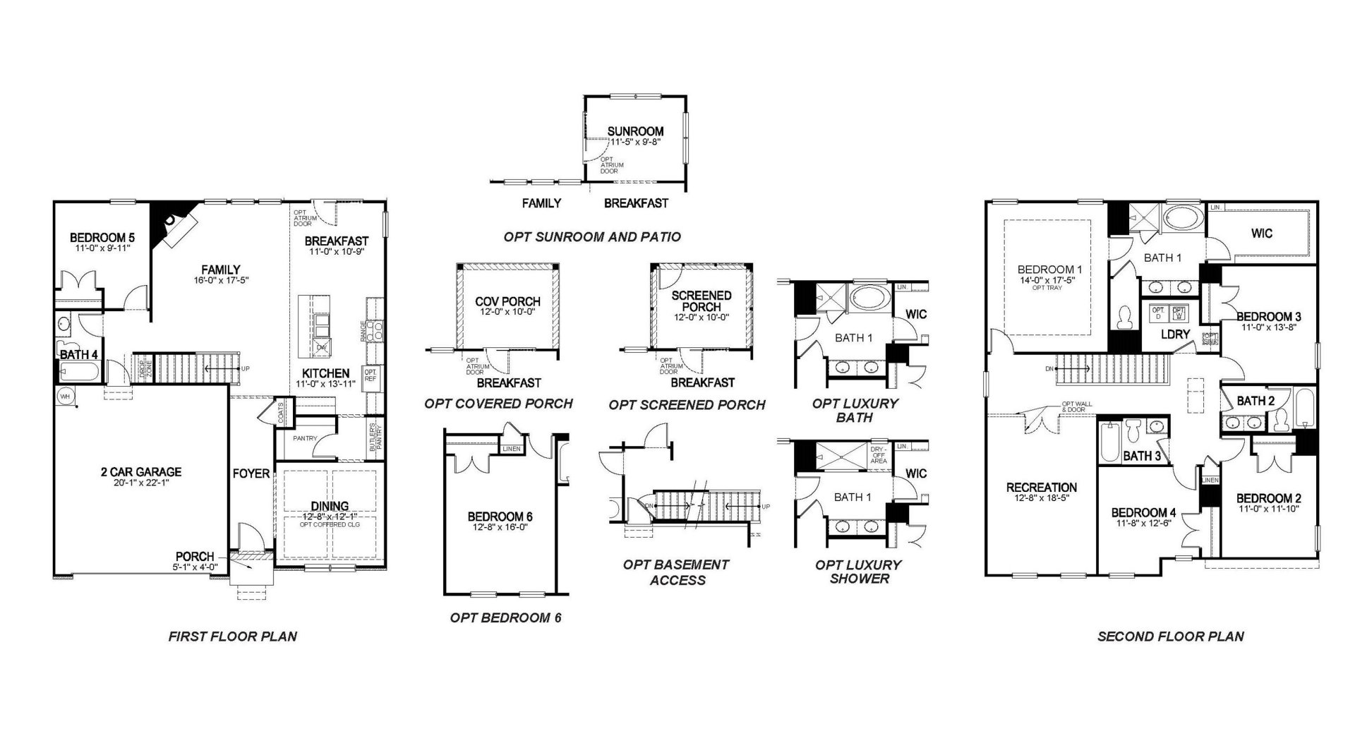
View active listings in Adams Glen →Check out 428 Fiery Road, a stunning new home! This spacious two-story home features five bedrooms, four bathrooms, a sunroom, loft area, and a two-car garage, providing ample space. Upon entering, you’ll be greeted by a grand foyer that leads into the heart of the home.
The open floor plan creates an airy and inviting atmosphere, with the living room connecting seamlessly to the kitchen and breakfast area. The chef’s kitchen is equipped with modern appliances, a large center island, ample storage space, and a pantry, making it perfect for both cooking and casual dining. Adjacent to the living room is a convenient bedroom on the main level.
The primary suite is a luxurious retreat, featuring an en-suite bathroom with dual vanities, a shower, and a large walk-in shower and closet. The additional bedrooms features privacy and comfort, sharing access to secondary bathrooms. A flexible recreational room provides endless possibilities for entertainment or relaxation.
SPN MLS # 332250
Quick Facts
Time on Site
4 months ago
Property Type
Residential
Year Built
2026
Lot Size
6,969 sqft
Price/Sq.Ft.
$158
Property Details
Schools
Features & Amenities
Location & Map
Map View
Loading map...
Additional Information
Basement
Community
- Clubhouse
- Common Areas
- Exercise Facility
- Street Lights
- Playground
- Pool
- Sidewalks
Lot & Land
Interior Details
New Construction
Parking & Garage
- 2 Car Attached
- Garage Door Opener
Exterior Features
- Architectural
- Slab
- Hardboard Siding
- Stone
H O A & Association
- Common Area
- Pool
- Recreation Facility
- Street Lights
Property Overview
- Two
Utilities & Systems
Listing Agent Information
You Might Also Like...
Interested in selling in Adams Glen?


