



$463,900
421 Fiery Road
Greenville, SC 29607
About This Property
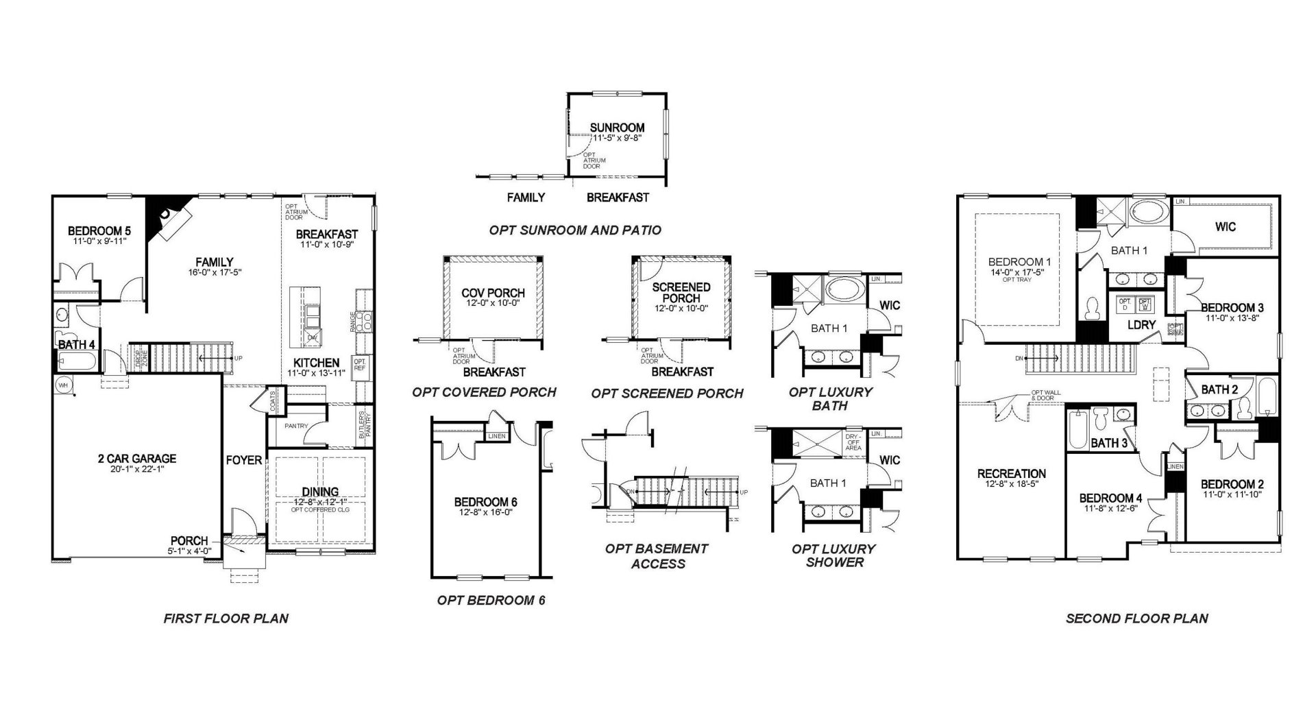
Check out 421 Fiery Road, a stunning new home! This spacious two-story home features five bedrooms, four bathrooms, and a two-car garage, providing ample space. Upon entering, you’ll be greeted by a grand foyer that leads into the heart of the home.
The open floor plan creates an airy and inviting atmosphere, with the living room connecting seamlessly to the kitchen and breakfast area. The chef’s kitchen is equipped with modern appliances, a large center island, ample storage space, and a pantry, making it perfect for both cooking and casual dining. Adjacent to the living room is a convenient bedroom on the main level.
The primary suite is a luxurious retreat, featuring an en-suite bathroom with dual vanities, a shower, soaking tub, and a large walk-in closet. The additional bedrooms features privacy and comfort, sharing access to secondary bathrooms. A flexible recreational room provides endless possibilities for entertainment or relaxation.
SPN MLS # 327613
Quick Facts
Time on Site
7 months ago
Property Type
Residential
Year Built
2025
Lot Size
6,534 sqft
Price/Sq.Ft.
$152
Property Details
Schools
Features & Amenities
Location & Map
Map View
Loading map...
Additional Information
Basement
Lot & Land
New Construction
Parking & Garage
H O A & Association
Property Overview
- Two

