




$234,720
42 Meteora Way
About This Property
This Property Has Been Sold
This property sold 5 years ago and is no longer available for purchase.
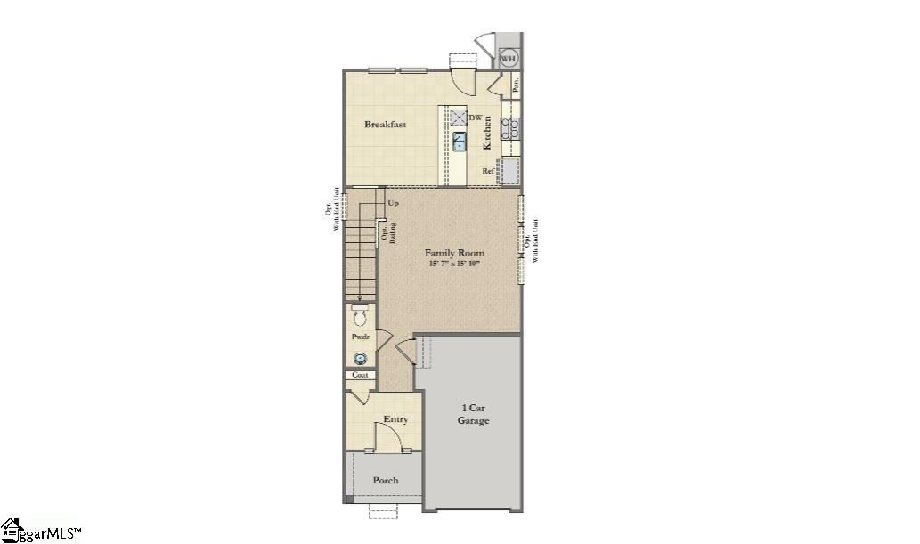
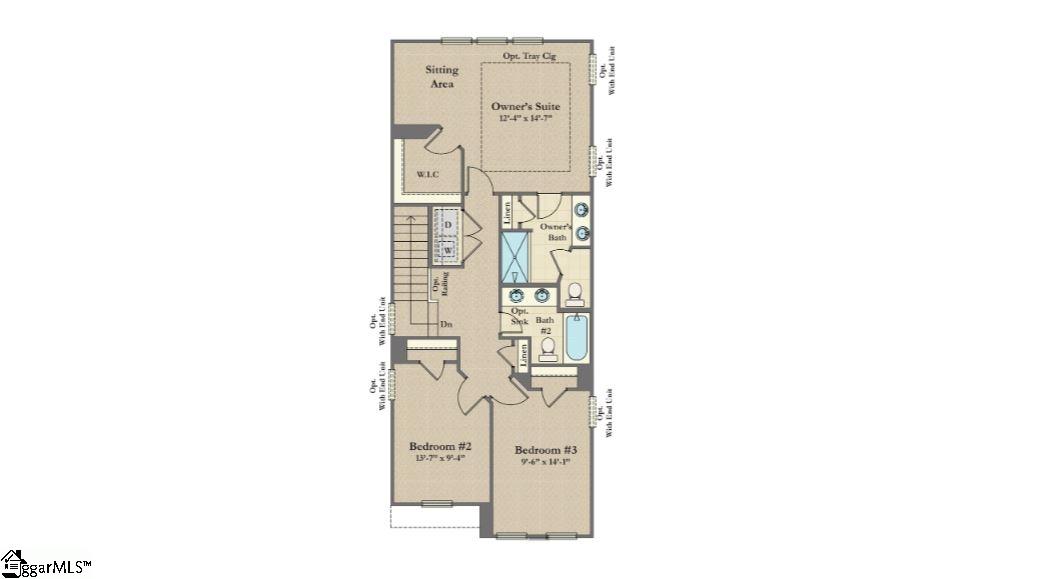
View active listings in The Vista →An amazing opportunity in The Vista just 3 miles from Downtown Greenville and 3 miles from I-385. The Litchfield - an inviting and open concept END UNIT townhome at approximately 1,600 square feet with 3 bedroom & 2.5 baths located North of Main in Greenville and nestled at the foot of the prestigious Montebello community.
Your new craftsman style townhome is appointed with upgraded finishes such as a large 9 ft granite center island with pendant lighting & COLORPLUS James Hardie Board Siding; Whirlpool stainless appliances, upgraded Masterbrand kitchen cabinets, tiled kitchen backsplash and upgraded flooring throughout first floor. Beautiful hardwood stairs up to second floor. This end unit includes a luxurious tiled walk-in shower off the huge upstairs Owner's suite.
The Vista is also zoned for the award winning schools, Paris Elementary, Sevier Middle, and Wade Hampton High. Estimated August 2021 completion date!
GVL MLS # 1439477
Quick Facts
Time on Site
5 years ago
Property Type
Residential
Year Built
2021
Lot Size
3,049 sqft
Property Details
Schools
Features & Amenities
Location & Map
Map View
Loading map...
Additional Information
Agent Contacts
- Greenville: (864) 757-4000
- Simpsonville: (864) 881-2800
Community & H O A
Room Dimensions
Property Details
- Patio
- Craftsman
- Level
- Underground Utilities
Exterior Features
- Extra Pad
- Paved
- Concrete Plank
- Stone
- Patio
- Vinyl/Aluminum Trim
- Windows-Insulated
Interior Features
- 2nd Floor
- Closet Style
- Dryer – Electric Hookup
- Carpet
- Other/See Remarks
- Cook Top-Gas
- Dishwasher
- Disposal
- Oven-Self Cleaning
- Oven-Electric
- Microwave-Built In
- Ceiling 9ft+
- Ceiling Smooth
- Countertops Granite
- Open Floor Plan
- Smoke Detector
- Walk In Closet
- Split Floor Plan
- Pantry – Closet
- Radon System
Systems & Utilities
- Central Forced
- Electric
- Forced Air
- Natural Gas
- Damper Controlled
Showing & Documentation
The information is being provided by Greater Greenville MLS. Information deemed reliable but not guaranteed. Information is provided for consumers' personal, non-commercial use, and may not be used for any purpose other than the identification of potential properties for purchase. Copyright 2025 Greater Greenville MLS. All Rights Reserved.
