

$299,900
406 Longhill Street
Greenville, SC 29605
About This Property
This Property Has Been Sold
This property sold 6 years ago and is no longer available for purchase.
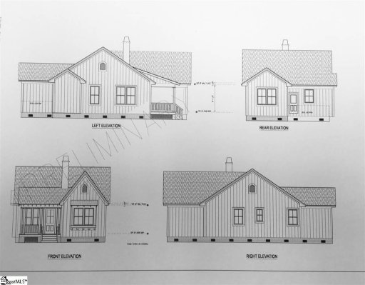
View active listings in Augusta Ranches →TO BE BUILT.... 3 bedroom/2 bath in the ever developing area of Augusta Ranches. Walking distance to both Blythe Elementary and Hughes Academy.
**All selections are a proposed representation and subject to change per Seller/Builder without notice ***Access to the property MUST be approved by listing agent...this is an ACTIVE CONSTRUCTION SITE.
GVL MLS # 1380507
Quick Facts
Time on Site
7 years ago
Property Type
Residential
Lot Size
6,098 sqft
Property Details
Schools
Features & Amenities
Features:
- Ceiling Fan(s)
- Ceiling Smooth
- Open Floorplan
- Pantry
Location & Map
Map View
Loading map...
Additional Information
Lot & Land
- 1/2 Acre or Less
Tax Information
Interior Details
- Carpet
- Ceramic Tile
- Wood
- Other
- Other
- Electric Water Heater
- 1st Floor
- Walk-in
- Ceiling Fan(s)
- Ceiling Smooth
- Open Floorplan
- Pantry
- Circulating
- Ventless
Parking & Garage
- See Remarks
- Paved
Exterior Features
- Architectural
- See Remarks
- Paved
- Crawl Space/Slab
- Deck
- Front Porch
- Vinyl Siding
- Other
Property Overview
- One
- Craftsman
Utilities & Systems
- Public Sewer
- Central Air
- Electric
- Cable Available
- Public
Listing Agent Information
The information is being provided by Greater Greenville MLS. Information deemed reliable but not guaranteed. Information is provided for consumers' personal, non-commercial use, and may not be used for any purpose other than the identification of potential properties for purchase. Copyright 2025 Greater Greenville MLS. All Rights Reserved.
You Might Also Like...
Interested in selling in Augusta Ranches?


