




$179,900
39 Cedar Brook Court
Greenville, SC 29611
About This Property
This Property Has Been Sold
This property sold 6 years ago and is no longer available for purchase.
View active listings in Lenhardt Village →***Close on a Friday, Move-In on a Saturday. Construction Completed! High Quality home by local builder with attention to detail.
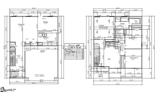
3BD/2.5BA. Kitchen with granite counters & lots of cabinets.
Living Room, Guest Bath, Dining Room, Loft (Den) & spacious Master Suite with trey ceiling, double vanities, walk-in closet, smooth ceilings throughout. 2 car garage included. Exterior Features include low maintenance siding, architectural roof, vinyl windows, deck, etc.
GVL MLS # 1384676
Quick Facts
Time on Site
7 years ago
Property Type
Residential
Lot Size
15,681 sqft
HOA Fees
$225/yr
Property Details
Schools
Features & Amenities
Features:
- Ceiling Fan(s)
- Ceiling Smooth
- Granite Counters
- Walk-In Closet(s)
Location & Map
Map View
Loading map...
Additional Information
Community
- Street Lights
- Other
Lot & Land
- 1/2 Acre or Less
- Sloped
Tax Information
Interior Details
- Carpet
- Vinyl
- Cooktop
- Dishwasher
- Microwave
- Electric Water Heater
- 2nd Floor
- Laundry Closet
- Laundry Room
- Ceiling Fan(s)
- Ceiling Smooth
- Granite Counters
- Walk-In Closet(s)
Parking & Garage
- Attached
- Paved
- Garage Door Opener
Exterior Features
- Architectural
- Attached
- Paved
- Garage Door Opener
- Slab
- Deck
- Porch
- Vinyl Siding
H O A & Association
Property Overview
- Two
- Traditional
Utilities & Systems
- Public Sewer
- Central Air
- Electric
- Electric
- Forced Air
- Cable Available
- Public
Listing Agent Information
The information is being provided by Greater Greenville MLS. Information deemed reliable but not guaranteed. Information is provided for consumers' personal, non-commercial use, and may not be used for any purpose other than the identification of potential properties for purchase. Copyright 2025 Greater Greenville MLS. All Rights Reserved.
You Might Also Like...
Interested in selling in Lenhardt Village?


