

$355,935
253 Chapel Creek Court
Greenville, SC 29605
About This Property
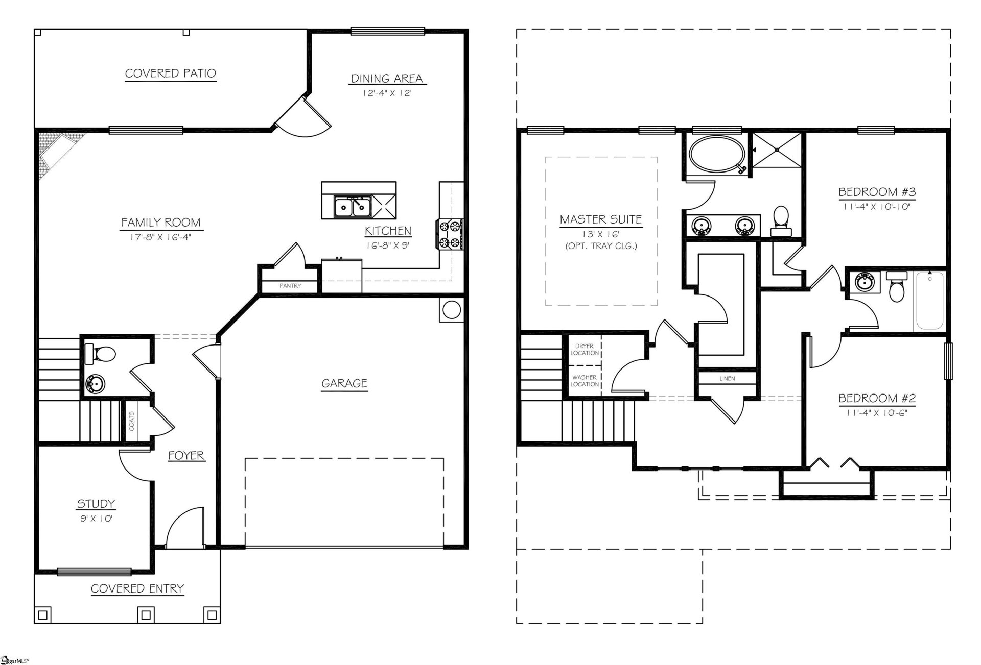
Check out 253 Chapel Creek Court, a beautiful new home in our Edgewood Estates community! This thoughtfully designed two-story home features three bedrooms, two and a half bathrooms, and a two-car garage, offering the perfect combination of comfort, style, and functionality. As you enter through the foyer, you’ll step into an open living area that seamlessly connects the living room, dining space, and modern kitchen.
The kitchen serves as the heart of the home, featuring stainless steel appliances, a large island, ample cabinetry, and a walk-in pantry. A convenient flex room on the main floor provides versatile space for a home office, playroom, or guest area. Upstairs, the primary suite offers a relaxing retreat with a spacious bedroom, private bathroom with dual vanities, and a walk-in closet.
Two additional bedrooms and a full bathroom provide plenty of room and privacy for everyone. The laundry room is also located upstairs for added convenience. Outside, the front porch creates a welcoming first impression, while the rear patio offers a perfect space for outdoor dining or relaxation.
GVL MLS # 1584516
Quick Facts
Time on Site
11 days ago
Property Type
Residential
Year Built
2026
Lot Size
6,098 sqft
Price/Sq.Ft.
$195
HOA Fees
$600/yr
Property Details
Schools
Features & Amenities
Features:
- High Ceilings
- Ceiling Fan(s)
- Ceiling Smooth
- Soaking Tub
- Walk-In Closet(s)
- Countertops – Quartz
- Pantry
- Radon System
Location & Map
Map View
Loading map...
Additional Information
Community
- Common Areas
- Street Lights
- Sidewalks
Lot & Land
- 1/2 Acre or Less
Tax Information
Interior Details
- Carpet
- Ceramic Tile
- Laminate
- Dishwasher
- Disposal
- Free-Standing Gas Range
- Self Cleaning Oven
- Microwave
- Gas Water Heater
- Tankless Water Heater
- 2nd Floor
- Walk-in
- High Ceilings
- Ceiling Fan(s)
- Ceiling Smooth
- Soaking Tub
- Walk-In Closet(s)
- Countertops – Quartz
- Pantry
- Radon System
- Gas Log
- Ventless
Parking & Garage
- Attached
- Concrete
- Garage Door Opener
- Key Pad Entry
Exterior Features
- Architectural
- Attached
- Concrete
- Garage Door Opener
- Key Pad Entry
- Slab
- Screened
- Front Porch
- Stone
- Vinyl Siding
H O A & Association
- Street Lights
- Restrictive Covenants
Property Overview
- Two
- Craftsman
Utilities & Systems
- Public Sewer
- Central Air
- Electric
- Forced Air
- Natural Gas
- Public
Listing Agent Information
The information is being provided by Greater Greenville MLS. Information deemed reliable but not guaranteed. Information is provided for consumers' personal, non-commercial use, and may not be used for any purpose other than the identification of potential properties for purchase. Copyright 2025 Greater Greenville MLS. All Rights Reserved.


