


$307,990
231 Woodhouse Way
Greenville, SC 29605
About This Property
This Property Has Been Sold
This property sold 2 years ago and is no longer available for purchase.
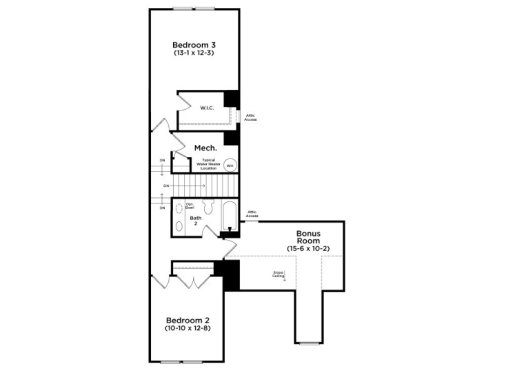
View active listings in Camden Cottages →Welcome to Camden Cottages! We are conveniently located in the city of Mauldin near I-85 and 385 and only 20 minutes to Woodruff Rd and Downtown Greenville with numerous shopping and dining options nearby including the soon to open 25,000 entertainment complex, Bridgeway Station. With over 2,000 square feet of living space, This End Unit Craftsman style home is being built for you! The open kitchen is a must see with stunning light grey cabinetry, white Quartz countertops, center island with sink, and stainless steel appliances including a gas range. The 12’ Cathedral Ceilings makes the living room open and airy and lead out to the covered porch which is perfect for those summer evenings. Since this is an End Unit home, there are more windows in the living room giving you lots of natural light! The main floor Primary Suite features double vanities, walk in closet and large 5 ft glass door shower. There is also a dining room adjacent to the foyer that could also make a great home office along with a an additional downstairs full bath. Upstairs are two more large bedrooms, full bath, and a huge Bonus room that would make a great entertainment or extra living space. An added bonus is lawn maintenance is covered by the HOA so you have more time to enjoy your home and the local area. All our homes feature our Smart Home Technology Package including a video doorbell, keyless entry and touch screen hub. Our dedicated local warranty team is here for your needs after closing as well. This home will be complete in Spring of 2024 so come by today for your personal tour and make Camden Cottages your new home!
Builder is paying the first year of HOA Dues!
Up to $21,000 in Flex Cash available, ask how it can save you money!
WUM MLS # 1054175755
Quick Facts
Time on Site
2 years ago
Property Type
Residential
Year Built
2024
Price/Sq.Ft.
$141
Property Details
Schools
Features & Amenities
Location & Map
Map View
Loading map...
Additional Information
Lot & Land
- CityLot
- Subdivision
Community & H O A
- MaintenanceGrounds
- StreetLights
Tax Information
Parking & Garage
- Attached
- Garage
Property Details
Exterior Features
- Architectural
- Shingle
Interior Features
- Carpet
- LuxuryVinyl
- LuxuryVinylPlank
- Dishwasher
- ElectricWaterHeater
- Disposal
- GasOven
- GasRange
- Microwave
- PlumbedForIceMaker
- BonusRoom
- Laundry
- CeilingFans
- CathedralCeilings
- DualSinks
- HighCeilings
- BathInPrimaryBedroom
- MainLevelPrimary
- PullDownAtticStairs
- QuartzCounters
- SmoothCeilings
- ShowerOnly
- CableTv
- WalkInClosets
Systems & Utilities
- CentralAir
- Electric
- ForcedAir
- NaturalGas
Listing Agent Information
This information is deemed reliable, but not guaranteed. Neither, the Western Upstate Association of REALTORS®, Inc. or Western Upstate Multiple Listing Service of South Carolina Inc., nor the listing broker, nor their agents or subagents are responsible for the accuracy of the information. The buyer is responsible for verifying all information. This information is provided by the Western Upstate Association of REALTORS®, Inc. and Western Upstate Multiple Listing Service of South Carolina, Inc. for use by its members and is not intended for the use for any other purpose. Information is provided for consumers' personal, non-commercial use, and may not be used for any purpose other than the identification of potential properties for purchase. The data relating to real estate for sale on this Web site comes in part from the Broker Reciprocity Program of the Western Upstate Association of REALTORS®, Inc. and the Western Upstate Multiple Listing Service, Inc.
You Might Also Like...
Interested in selling in Camden Cottages?


