




$376,920
208 Meritta Trail Lot 12
Greenville, SC 29615
About This Property
This Property Has Been Sold
This property sold 9 years ago and is no longer available for purchase.
View active listings in The Villas At Oak Grove →Location, location, location. Neighborhood next to Oak Grove Lake, lots 1-6 will have a backyard lake view!! Ohh-La-La...
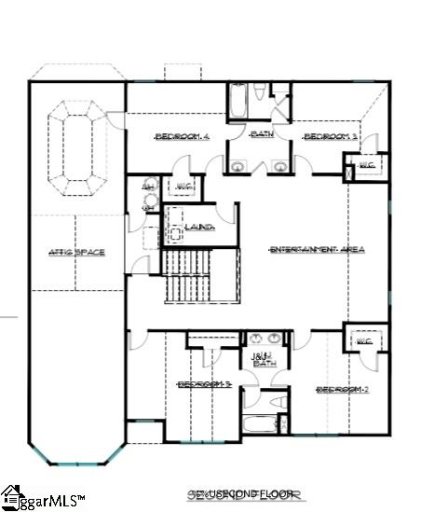
The Benjamin, one of our newest plans!! 3-car garage, Master on Main, gourmet kitchen with large breakfast bar, custom tile backsplash, granite, double ovens gas cooktop...Absolutely BEAUTIFUL!
5" hand-scraped hardwoods, Soaring 10' ceilings, Huge loft area. Great little mudroom with built in bench, great for storage!! 4 bedrooms up, connected by J&J Bathrooms.
GVL MLS # 1336833
Quick Facts
Time on Site
9 years ago
Property Type
Residential
Lot Size
9,147 sqft
HOA Fees
$550/yr
Property Details
Schools
Features & Amenities
Features:
- High Ceilings
- Ceiling Fan(s)
- Vaulted Ceiling(s)
- Ceiling Smooth
- Tray Ceiling(s)
- Granite Counters
- Open Floorplan
- Soaking Tub
- Walk-In Closet(s)
- Countertops-Other
Location & Map
Map View
Loading map...
Additional Information
Community
- Common Areas
- Street Lights
Lot & Land
- 1/2 Acre or Less
- Sprklr In Grnd-Partial Yd
Tax Information
Interior Details
- Carpet
- Ceramic Tile
- Wood
- Vinyl
- Gas Cooktop
- Dishwasher
- Oven
- Double Oven
- Microwave
- Tankless Water Heater
- 2nd Floor
- High Ceilings
- Ceiling Fan(s)
- Vaulted Ceiling(s)
- Ceiling Smooth
- Tray Ceiling(s)
- Granite Counters
- Open Floorplan
- Soaking Tub
- Walk-In Closet(s)
- Countertops-Other
- Gas Log
Parking & Garage
- Attached
- Paved
Exterior Features
- Architectural
- Attached
- Paved
- Slab
- Patio
- Brick Veneer
- Concrete
H O A & Association
Property Overview
- Two
- Craftsman
Utilities & Systems
- Public Sewer
- Central Air
- Electric
- Multi Units
- Forced Air
- Multi-Units
- Natural Gas
- Underground Utilities
- Cable Available
- Public
Listing Agent Information
The information is being provided by Greater Greenville MLS. Information deemed reliable but not guaranteed. Information is provided for consumers' personal, non-commercial use, and may not be used for any purpose other than the identification of potential properties for purchase. Copyright 2025 Greater Greenville MLS. All Rights Reserved.
You Might Also Like...
Interested in selling in The Villas At Oak Grove?


