




$242,990
2 Meteora Way
About This Property
This Property Has Been Sold
This property sold 5 years ago and is no longer available for purchase.
View active listings in The Vista →Lease up in soon? Don't miss this Brand New END UNIT Townhome in The Vista North of Main ready JULY!! 3 miles from Downtown Greenville and 3 miles from I-385.
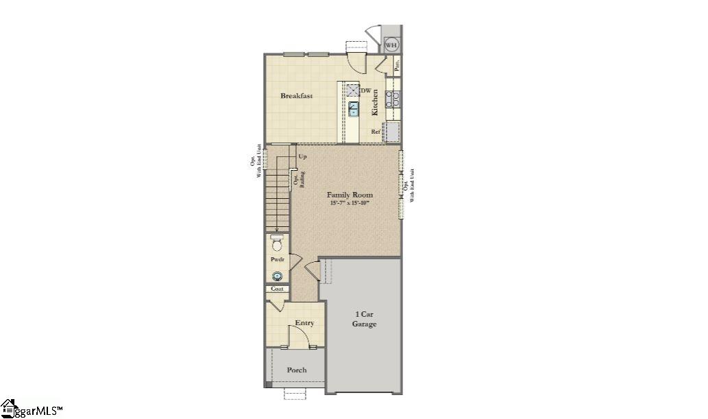
This open concept at approximately 1,600 square feet, 3 bedroom & 2.5 bath townhome is located in the Cherrydale community in Greenville nestled at the foot of the prestigious Montebello community. Your new townhome is appointed with a 9ft centered granite island & COLORPLUS James Hardie Board Siding.
Home to include tiled shower in owner's bath and hardwood stairs! This luxury end unit has all the bells and whistles: upgraded appliances to include gas range, upgraded cabinets, tiled backsplash, craftsman trim package, upgraded flooring and abundant lighting. The Vista is also zoned for the award winning schools.
GVL MLS # 1437204
Quick Facts
Time on Site
5 years ago
Property Type
Residential
Year Built
2021
Lot Size
2,613 sqft
Property Details
Schools
Features & Amenities
Location & Map
Map View
Loading map...
Additional Information
Agent Contacts
- Greenville: (864) 757-4000
- Simpsonville: (864) 881-2800
Community & H O A
Room Dimensions
Property Details
- Patio
- Craftsman
- Level
- Underground Utilities
Exterior Features
- Extra Pad
- Paved
- Concrete Plank
- Stone
- Patio
- Vinyl/Aluminum Trim
- Windows-Insulated
Interior Features
- 2nd Floor
- Closet Style
- Dryer – Electric Hookup
- Carpet
- Other/See Remarks
- Cook Top-Gas
- Dishwasher
- Disposal
- Oven-Self Cleaning
- Oven-Electric
- Microwave-Built In
- Ceiling 9ft+
- Ceiling Smooth
- Countertops Granite
- Open Floor Plan
- Smoke Detector
- Walk In Closet
- Split Floor Plan
- Pantry – Closet
- Radon System
Systems & Utilities
- Central Forced
- Electric
- Forced Air
- Natural Gas
- Damper Controlled
Showing & Documentation
The information is being provided by Greater Greenville MLS. Information deemed reliable but not guaranteed. Information is provided for consumers' personal, non-commercial use, and may not be used for any purpose other than the identification of potential properties for purchase. Copyright 2025 Greater Greenville MLS. All Rights Reserved.
