

$314,350
16 River Fork Trail
Greenville, SC 29605
About This Property
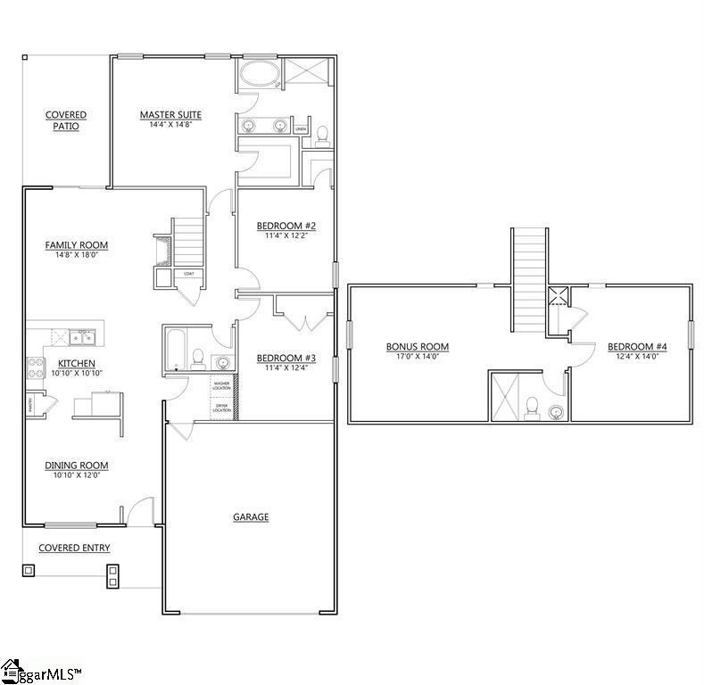
Explore 16 River Fork Trail, a beautiful new home in our Edgewood Estates community! This inviting two-story home features four bedrooms, three bathrooms, and a two-car garage. Designed with comfort and functionality in mind, this home blends open living spaces with private retreats, creating the perfect balance for modern living.
As you enter through the covered entry, you’ll be welcomed into a spacious dining room that flows seamlessly into the kitchen. The kitchen features modern appliances, a pantry, and an island overlooking the living room, making it ideal for both everyday meals and entertaining. The living room opens to a covered patio, providing an easy transition to outdoor living and relaxation.
The primary suite is located on the main level and includes a spacious bathroom with dual vanities, a soaking tub, a separate shower, and a walk-in closet. Two additional bedrooms and a full bathroom are also located on the first floor, providing comfort and convenience for family or guests. Upstairs, a fourth bedroom, full bathroom, and flexible space create endless possibilities for a media room, home office, or playroom.
GVL MLS # 1580402
Quick Facts
Time on Site
2 months ago
Property Type
Residential
Year Built
2026
Lot Size
6,098 sqft
Price/Sq.Ft.
$153
HOA Fees
$600/yr
Property Details
Schools
Features & Amenities
Features:
- High Ceilings
- Ceiling Fan(s)
- Ceiling Smooth
- Countertops-Solid Surface
- Open Floorplan
- Soaking Tub
- Walk-In Closet(s)
- Pantry
- Radon System
Location & Map
Map View
Loading map...
Additional Information
Community
- Common Areas
- Street Lights
- Sidewalks
Lot & Land
- 1/2 Acre or Less
- Sprklr In Grnd-Partial Yd
Tax Information
Interior Details
- Carpet
- Vinyl
- Dishwasher
- Disposal
- Self Cleaning Oven
- Free-Standing Electric Range
- Microwave
- Gas Water Heater
- 1st Floor
- Walk-in
- High Ceilings
- Ceiling Fan(s)
- Ceiling Smooth
- Countertops-Solid Surface
- Open Floorplan
- Soaking Tub
- Walk-In Closet(s)
- Pantry
- Radon System
- Gas Log
- Ventless
Parking & Garage
- Attached
- Concrete
- Garage Door Opener
Exterior Features
- Architectural
- Attached
- Concrete
- Garage Door Opener
- Slab
- Patio
- Front Porch
- Rear Porch
- Stone
- Vinyl Siding
H O A & Association
- Street Lights
- Restrictive Covenants
Property Overview
- Two
- Craftsman
Utilities & Systems
- Public Sewer
- Central Air
- Electric
- Forced Air
- Natural Gas
- Public
Listing Agent Information
The information is being provided by Greater Greenville MLS. Information deemed reliable but not guaranteed. Information is provided for consumers' personal, non-commercial use, and may not be used for any purpose other than the identification of potential properties for purchase. Copyright 2025 Greater Greenville MLS. All Rights Reserved.


