




$1,499,000
16 Park Edge Court
Greenville, SC 29601
About This Property
This Property Has Been Sold
This property sold 1 year ago and is no longer available for purchase.
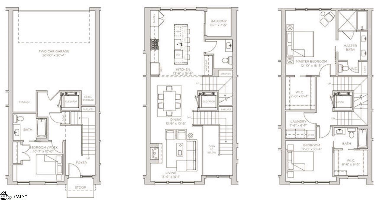
View active listings in Bradshaw Commons →A Real "Jewel" of a Townhome, Lucky You! Your dream to live in Greenville's popular West End is in your reach! Brimming with exclusive features you'll only find here.
Let's start at the top. 4th floor: Rooftop terrace has a Rachio Smart drip irrigation system and attractive string lights around its perimeter, speakers, wired for TV over FP, outdoor grilling station and sink w/hot&cold water, gas fireplace, security cameras, rain gutter, and gorgeous 360 views of downtown Greenville, Fluor Field fireworks, and the surrounding areas. 3rd floor: Spacious primary suite with room darkening window treatments, large bath w/oversized shower, double sinks, heated tiled floors, custom closet, dimmable recessed lighting, and Alarm dot-com security system control pad.
Guest bedroom has full bath w/shower, heated tiled floors, and large custom closet. Spacious laundry room with cabinets, adjustable shelving, peg board hanging storage and includes washer/dryer/frig. 2nd floor: enjoy your open floorplan living room with fireplace surrounded by builtins, recessed lighting throughout, gorgeous modern chandelier, beautiful pendant lighting over kitchen island, room darkening shades.
GVL MLS # 1536528
Quick Facts
Time on Site
2 years ago
Property Type
Residential
Year Built
2022
Lot Size
1,306 sqft
Price/Sq.Ft.
$631
HOA Fees
$360/mo
Property Details
Schools
Features & Amenities
Features:
- 2 Story Foyer
- High Ceilings
- Ceiling Fan(s)
- Ceiling Smooth
- Soaking Tub
- Walk-In Closet(s)
- Elevator
- Countertops – Quartz
- Pantry
Location & Map
Map View
Loading map...
Additional Information
Community
- Common Areas
- Street Lights
- Sidewalks
- Landscape Maintenance
Lot & Land
- Sidewalk
- Sprklr In Grnd-Full Yard
Tax Information
Interior Details
- Ceramic Tile
- Wood
- Dishwasher
- Disposal
- Free-Standing Gas Range
- Convection Oven
- Refrigerator
- Gas Oven
- Wine Cooler
- Microwave
- Range Hood
- Gas Water Heater
- Tankless Water Heater
- Walk-in
- Electric Dryer Hookup
- Washer Hookup
- Laundry Room
- 2 Story Foyer
- High Ceilings
- Ceiling Fan(s)
- Ceiling Smooth
- Soaking Tub
- Walk-In Closet(s)
- Elevator
- Countertops – Quartz
- Pantry
- Gas Starter
Parking & Garage
- Attached
- Concrete
- Key Pad Entry
- Driveway
Exterior Features
- Metal
- Attached
- Concrete
- Key Pad Entry
- Driveway
- Slab
- Patio
- Front Porch
- Brick Veneer
- Hardboard Siding
- Outdoor Fireplace
- Outdoor Kitchen
H O A & Association
- Common Area Ins.
- Electricity
- Maintenance Structure
- Insurance
- Maintenance Grounds
- Pest Control
- Street Lights
- Trash
- By-Laws
- Restrictive Covenants
- Yard Irrigation
Property Overview
- Three Or More
- Contemporary
Utilities & Systems
- Public Sewer
- Central Air
- Multi Units
- Multi-Units
- Natural Gas
- Heat Pump
- Underground Utilities
- Public
Listing Agent Information
The information is being provided by Greater Greenville MLS. Information deemed reliable but not guaranteed. Information is provided for consumers' personal, non-commercial use, and may not be used for any purpose other than the identification of potential properties for purchase. Copyright 2025 Greater Greenville MLS. All Rights Reserved.
You Might Also Like...
Interested in selling in Bradshaw Commons?

