

$100,000
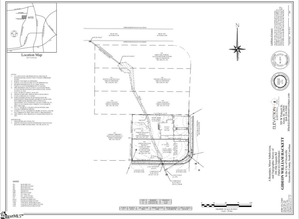
106 Old Augusta Road
Greenville, SC 29605
About This Property
This Property Has Been Sold
This property sold 2 years ago and is no longer available for purchase.
View active listings in Pleasant Valley →Welcome to the Desirable Old Augusta lot! We're excited to present this amazing property that is now available for sale. This lot offers a fantastic location and used to be separate from the current house, as you can see in the photo.
It will have its own separate tax map from 106 Old Augusta. The seller has surveyed the land and is in the process of applying for its return to the original subdivision. Please be aware that there is a storm water washout that runs through the property.
We want to inform you that there might be a need to relocate the stormwater drain. However, it's important to note that any expenses related to this relocation will be the responsibility of the buyer. Rest assured, we have the engineering plans for the diversion if it is required.
GVL MLS # 1490993
Quick Facts
Time on Site
3 years ago
Property Type
Land
Lot Size
7,405 sqft
Property Details
Schools
Features & Amenities
Location & Map
Map View
Loading map...
Additional Information
Lot & Land
- Corner Lot
- Open Lot
Tax Information
Property Overview
Utilities & Systems
- Sewer Available
- Water Available
Listing Agent Information
The information is being provided by Greater Greenville MLS. Information deemed reliable but not guaranteed. Information is provided for consumers' personal, non-commercial use, and may not be used for any purpose other than the identification of potential properties for purchase. Copyright 2025 Greater Greenville MLS. All Rights Reserved.
You Might Also Like...
Interested in selling in Pleasant Valley?


