




$699,900
100 Yorkswell Lane
Greenville, SC 29607
About This Property
PRICE IMPROVEMENT - SELLER MOTIVATED!! Set on a LEVEL 1-ACRE LOT, this home presents a rare opportunity for buyers seeking space and versatility without sacrificing convenience. The expansive yard offers exceptional elbow room and future potential—ideal for outdoor living, recreation, or a pool.
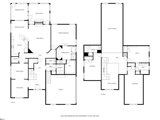
A grand two-story foyer with open catwalk welcomes you inside, where a see-through gas fireplace enhances the flow between living areas. The well-appointed kitchen is designed for entertaining with granite countertops, double ovens, a butler’s pantry, and ample storage. The primary suite on the main level provides a private retreat with a garden tub, separate shower, and walk-in closet, while additional bedrooms are located upstairs.
Multiple outdoor living spaces—including a sunroom, screened porch, and stone patio—extend the home’s livability and create seamless indoor-outdoor enjoyment. Ideally situated near BridgeWay Station, Mauldin, Greenville, and major shopping and dining, this property combines space, acreage, and accessibility. (Some photos are virtually staged.
GVL MLS # 1567960
Quick Facts
Time on Site
7 months ago
Property Type
Residential
Lot Size
1.04 acres
Price/Sq.Ft.
$202
HOA Fees
$550/yr
Property Details
Schools
Features & Amenities
Features:
- 2 Story Foyer
- High Ceilings
- Ceiling Fan(s)
- Vaulted Ceiling(s)
- Ceiling Smooth
- Central Vacuum
- Granite Counters
- Countertops-Solid Surface
- Open Floorplan
- Soaking Tub
- Walk-In Closet(s)
- Split Floor Plan
- Pantry
Location & Map
Map View
Loading map...
Additional Information
Community
- Common Areas
- Street Lights
Lot & Land
- 1 - 2 Acres
- Sloped
- Few Trees
- Sprklr In Grnd-Full Yard
Tax Information
Interior Details
- Carpet
- Ceramic Tile
- Wood
- Slate
- Cooktop
- Dishwasher
- Disposal
- Self Cleaning Oven
- Convection Oven
- Oven
- Refrigerator
- Electric Cooktop
- Electric Oven
- Double Oven
- Microwave
- Electric Water Heater
- 1st Floor
- Walk-in
- Electric Dryer Hookup
- Washer Hookup
- Laundry Room
- 2 Story Foyer
- High Ceilings
- Ceiling Fan(s)
- Vaulted Ceiling(s)
- Ceiling Smooth
- Central Vacuum
- Granite Counters
- Countertops-Solid Surface
- Open Floorplan
- Soaking Tub
- Walk-In Closet(s)
- Split Floor Plan
- Pantry
- Gas Log
- See Through
Parking & Garage
- Attached
- Paved
- Concrete
- Driveway
Exterior Features
- Architectural
- Attached
- Paved
- Concrete
- Driveway
- Crawl Space/Slab
- Screened
- Patio
- Brick Veneer
- Hardboard Siding
- Under Ground Irrigation
H O A & Association
Property Overview
- Two
- Traditional
Utilities & Systems
- Septic Tank
- Central Air
- Electric
- Forced Air
- Natural Gas
- Underground Utilities
- Cable Available
- Public
Listing Agent Information
The information is being provided by Greater Greenville MLS. Information deemed reliable but not guaranteed. Information is provided for consumers' personal, non-commercial use, and may not be used for any purpose other than the identification of potential properties for purchase. Copyright 2025 Greater Greenville MLS. All Rights Reserved.


