


$150,300
1 Maplecroft Street
Greenville, SC 29609
About This Property
This Property Has Been Sold
This property sold 11 years ago and is no longer available for purchase.
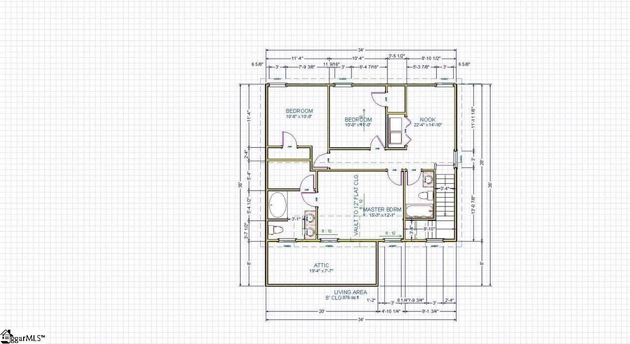
View active listings in Piedmont Park →New Construction just minutes from Downtown Greenville and Paris Mtn State Park. Great open floor plan with an over sized kitchen. Plan features 3 bedrooms 2.
5 bathrooms and a loft area / nook that would make a great home office. Enjoy entertaining on the 10'x20' covered porch.
GVL MLS # 1307814
Quick Facts
Time on Site
11 years ago
Property Type
Residential
Year Built
2015
Lot Size
10,018 sqft
Property Details
Schools
Features & Amenities
Features:
- High Ceilings
- Ceiling Fan(s)
- Ceiling Smooth
- Open Floorplan
- Walk-In Closet(s)
- Countertops-Other
Location & Map
Map View
Loading map...
Additional Information
Lot & Land
- Sloped
- Few Trees
Tax Information
Interior Details
- Carpet
- Wood
- Vinyl
- Dishwasher
- Microwave
- Free-Standing Electric Range
- Electric Water Heater
- 2nd Floor
- High Ceilings
- Ceiling Fan(s)
- Ceiling Smooth
- Open Floorplan
- Walk-In Closet(s)
- Countertops-Other
Parking & Garage
- Attached
- Paved
- Garage Door Opener
Exterior Features
- Architectural
- Attached
- Paved
- Garage Door Opener
- Slab
- Patio
- Front Porch
- Porch
- Stone
- Vinyl Siding
Property Overview
- Two
- Traditional
Utilities & Systems
- Public Sewer
- Central Air
- Electric
- Electric
- Public
Listing Agent Information
The information is being provided by Greater Greenville MLS. Information deemed reliable but not guaranteed. Information is provided for consumers' personal, non-commercial use, and may not be used for any purpose other than the identification of potential properties for purchase. Copyright 2025 Greater Greenville MLS. All Rights Reserved.
You Might Also Like...
Interested in selling in Piedmont Park?


