


$359,900
116 Madison Court
About This Property
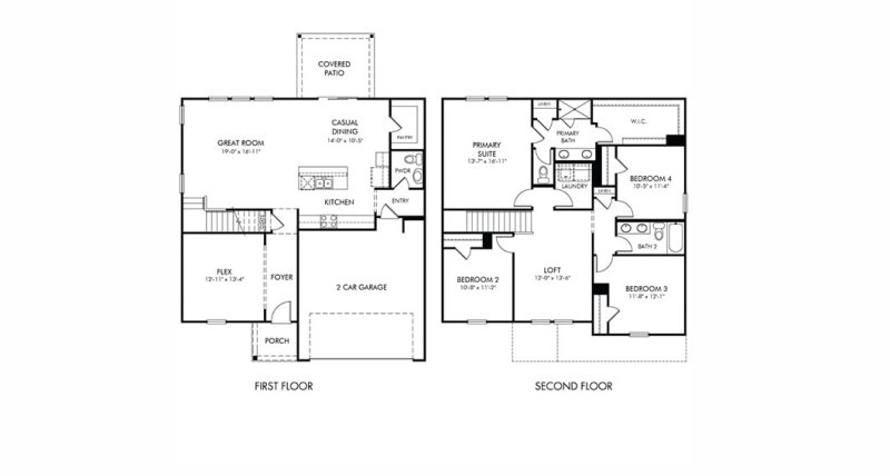
Brand new, energy-efficient home available by Feb 2026! Entertaining comes easy in the Brentwood's open-concept kitchen and great room. A first-floor flex space makes a useful work area.
White cabinet with white quartz countertops, EVP flooring, and carpet in our Radiant Package. The Farm at Wells Creek offers energy-efficient, ranch and two-story homes. Located off I-385, homeowners will enjoy easy access to entertainment and dining.
Floorplans vary from three to five bedrooms and include spacious open-concept great rooms and luxurious primary suites. Homeowners will enjoy premier amenities including a pool and cabana, pickleball courts, a playground, and more. Schedule an appointment today.
Quick Facts
Time on Site
2 weeks ago
Property Type
Residential
Year Built
2026
Property Details
Schools
Features & Amenities
Location & Map
Map View
Loading map...
Additional Information
Lot & Land
- Level
- OutsideCityLimits
- Subdivision
Community & H O A
- Pools
- RecreationFacilities
- StreetLights
- CommonGroundsArea
- Clubhouse
- Playground
- Pool
- Sidewalks
Tax Information
Parking & Garage
- Attached
- Garage
- Driveway
Property Details
Exterior Features
- Architectural
- Shingle
Interior Features
- Carpet
- Tile
- Vinyl
- Dryer
- Dishwasher
- Disposal
- GasOven
- GasRange
- Microwave
- Refrigerator
- Washer
- BonusRoom
- Laundry
- Loft
- DualSinks
- GraniteCounters
- HighCeilings
- BathInPrimaryBedroom
- PullDownAtticStairs
- SmoothCeilings
- ShowerOnly
- UpperLevelPrimary
- WalkInClosets
- WalkInShower
- WindowTreatments
- Loft
Systems & Utilities
- HeatPump
- Zoned
- HeatPump
- Zoned
- CableAvailable
- ElectricityAvailable
- NaturalGasAvailable
- SewerAvailable
- WaterAvailable
- UndergroundUtilities
Listing Agent Information
This information is deemed reliable, but not guaranteed. Neither, the Western Upstate Association of REALTORS®, Inc. or Western Upstate Multiple Listing Service of South Carolina Inc., nor the listing broker, nor their agents or subagents are responsible for the accuracy of the information. The buyer is responsible for verifying all information. This information is provided by the Western Upstate Association of REALTORS®, Inc. and Western Upstate Multiple Listing Service of South Carolina, Inc. for use by its members and is not intended for the use for any other purpose. Information is provided for consumers' personal, non-commercial use, and may not be used for any purpose other than the identification of potential properties for purchase. The data relating to real estate for sale on this Web site comes in part from the Broker Reciprocity Program of the Western Upstate Association of REALTORS®, Inc. and the Western Upstate Multiple Listing Service, Inc.
