




$312,000
730 Clementine Run
Gilbert, SC 29054
About This Property
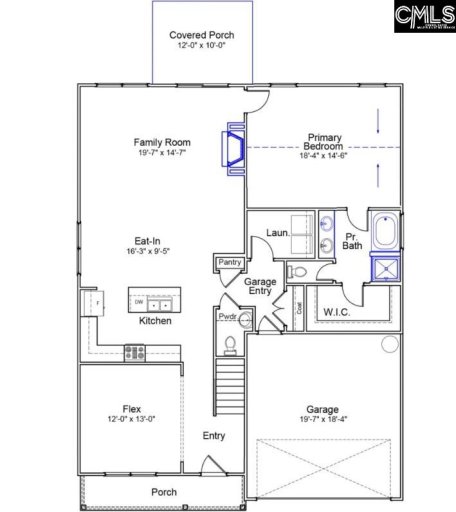
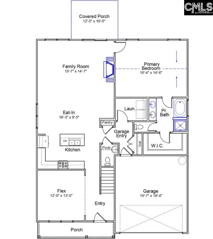
*MOVE IN READY* The Pickens with Elevation B is a two-story home that offers a flex room just inside the front door. An open kitchen, eating area, and great room leads out to your covered back porch. The primary bedroom offers a vaulted ceiling, a beautiful primary bathroom, and a generous walk-in closet.
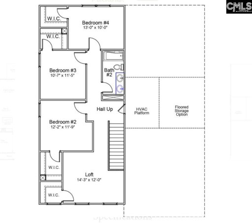
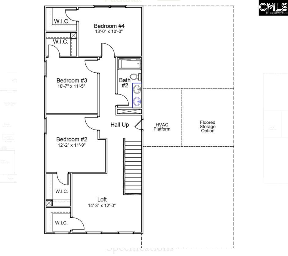
Each bedroom upstairs also has a walk-in closet, and they share another full bathroom. In addition, the second floor contains a versatile loft space that is perfect for entertaining! Convenient to nearby Lexington shopping, Lake Murray, top-rated schools, and just a 40-minute drive to downtown Columbia.
*$8500 in closing costs available when using partner lender and preferred attorney* Disclaimer: CMLS has not reviewed and, therefore, does not endorse vendors who may appear in listings.
COL MLS # 623927
Quick Facts
Time on Site
4 months ago
Property Type
Residential
Year Built
2024
Lot Size
6,098 sqft
Price/Sq.Ft.
$128
Property Details
Schools
Features & Amenities
Location & Map
Map View
Loading map...
Additional Information
Lot & Land
Parking & Garage
- Garage Attached
- Front Entry
Exterior Features
H O A & Association
- Common Area Maintenance
- Pool
Property Overview
Utilities & Systems
- Central
- Heat Pump 2nd Lvl
- Split System
- Zoned
- Gas 1st Lvl
- Heat Pump 2nd Lvl
- Split System
- Zoned
Listing Agent Information
Details provided by Consolidated MLS and may not match the public record. Learn more. The information is being provided by Consolidated Multiple Listing Service, Inc. Information deemed reliable but not guaranteed. Information is provided for consumers' personal, non-commercial use, and may not be used for any purpose other than the identification of potential properties for purchase. © 2025 Consolidated Multiple Listing Service, Inc. All Rights Reserved.


