




$275,000
617 Clementine Run
Gilbert, SC 29054
About This Property
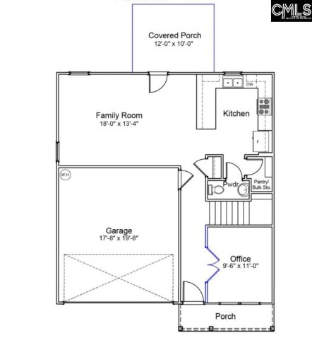
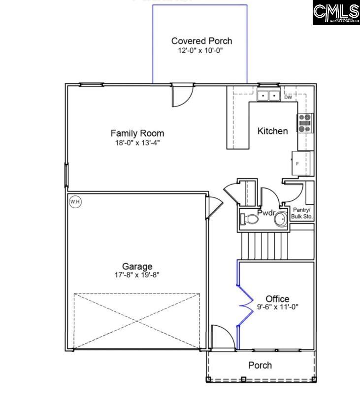
MOVE IN READY!!!! The Guilford plan is a two-story, four-bedroom, two-and-a-half- bath home featuring a home office or flex space at entry. The kitchen offers a tile back splash, stainless steel appliances including a smooth cooktop range, and opens to the great room.
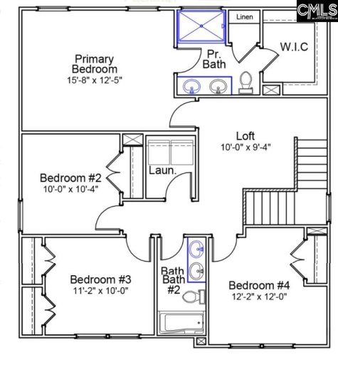
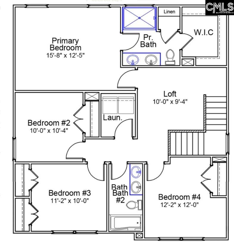
Enjoy outdoor living on the covered porch. Luxury vinyl plank flooring runs throughout the main level, which features a spacious walk-in closet and a private bath with dual vanities, and a tiled shower. Upstairs includes all bedrooms and a loft, offering plenty of space for everyone.
Convenient to nearby Lexington shopping, Lake Murray, top-rated schools, and just a 40-minute drive to downtown Columbia. *$8500 in closing costs available when using partner lender and preferred attorney* Disclaimer: CMLS has not reviewed and, therefore, does not endorse vendors who may appear in listings.
COL MLS # 625962
Quick Facts
Time on Site
3 months ago
Property Type
Residential
Year Built
2025
Lot Size
5,227 sqft
Price/Sq.Ft.
$154
Property Details
Schools
Features & Amenities
Features:
- Smoke Detector
- Attic Pull-Down Access
Location & Map
Map View
Loading map...
Additional Information
Laundry
Lot & Land
Room Details
- Bar
- Eat In
- Pantry
- Backsplash-Tiled
- Cabinets-Painted
- Recessed Lights
- Counter Tops-Quartz
- Floors-Luxury Vinyl Plank
Miscellaneous
- Community Pool
- Warranty (New Const) Bldr
Primary Suite
- Double Vanity
- Bath-Private
- Floors - Carpet
Interior Details
- Dishwasher
- Disposal
- Microwave Above Stove
- Tankless H20
- Smoke Detector
- Attic Pull-Down Access
Parking & Garage
- Garage Attached
- Front Entry
Exterior Features
- Patio
- Back Porch - Covered
H O A & Association
- Common Area Maintenance
- Pool
Property Overview
Utilities & Systems
- Central
- Heat Pump 2nd Lvl
- Split System
- Zoned
- Gas 1st Lvl
- Heat Pump 2nd Lvl
- Split System
- Zoned
Listing Agent Information
Details provided by Consolidated MLS and may not match the public record. Learn more. The information is being provided by Consolidated Multiple Listing Service, Inc. Information deemed reliable but not guaranteed. Information is provided for consumers' personal, non-commercial use, and may not be used for any purpose other than the identification of potential properties for purchase. © 2025 Consolidated Multiple Listing Service, Inc. All Rights Reserved.


