


$268,000
523 Bogarde Terrace
Gilbert, SC 29054
About This Property
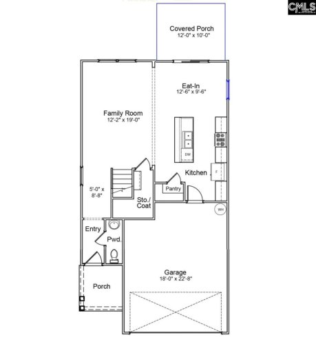
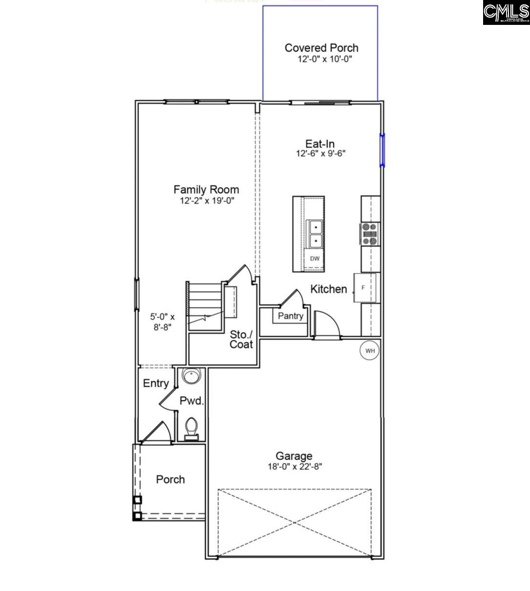
Welcome to Winston Point, Mungo's first neighborhood in Gilbert! The community features a pool and cabana, and this Highland plan is stunning! This beautifully planned two-story home blends comfort, function, and modern style.
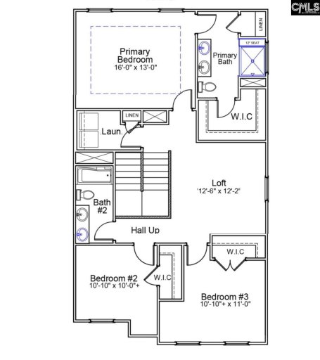
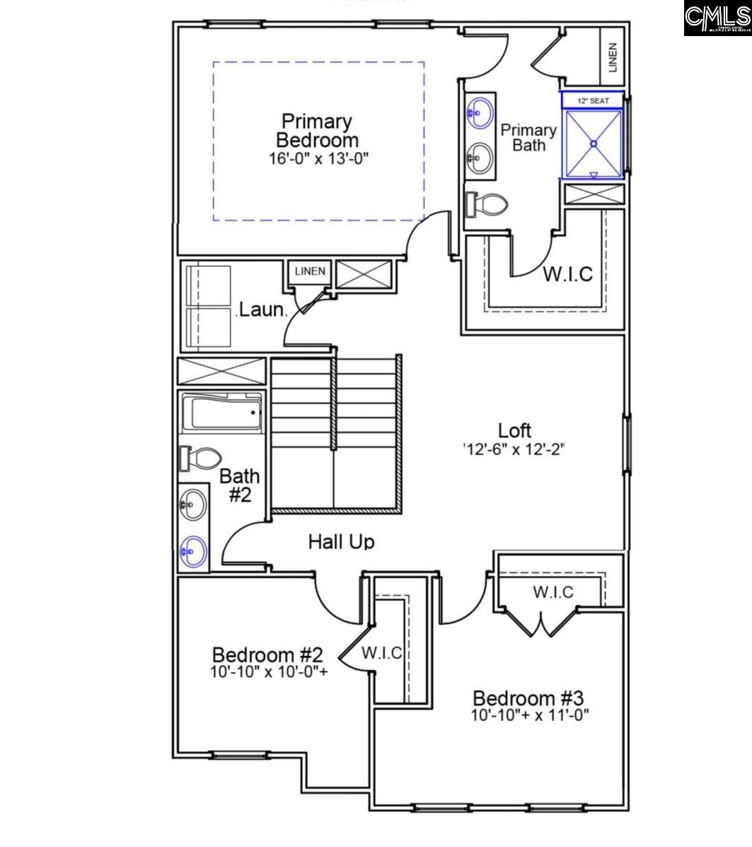
The main level has an effortless flow—step from the welcoming entry into a dining space that opens seamlessly to the kitchen and great room. Upstairs, the centrally located laundry room sits just steps from all bedrooms and the loft for added practicality. The primary suite provides a peaceful retreat with a generous walk-in closet and a spacious bath featuring dual sinks and a walk-in shower.
Two additional bedrooms and a full hall bath give comfortable, flexible spaces for guests, loved ones, or work-from-home needs. Designed with everyday life in mind, this home delivers both livability and long-term comfort. *Photos shown are stock photos and may not depict specific selections in available home* Disclaimer: CMLS has not reviewed and, therefore, does not endorse vendors who may appear in listings.
COL MLS # 625168
Quick Facts
Time on Site
3 months ago
Property Type
Residential
Year Built
2026
Lot Size
5,227 sqft
Price/Sq.Ft.
$146
Property Details
Schools
Features & Amenities
Features:
- Smoke Detector
- Attic Pull-Down Access
Location & Map
Map View
Loading map...
Additional Information
Laundry
Lot & Land
Room Details
- Bar
- Eat In
- Pantry
- Backsplash-Tiled
- Cabinets-Painted
- Recessed Lights
- Counter Tops-Quartz
- Floors-Luxury Vinyl Plank
Miscellaneous
- Community Pool
- Warranty (New Const) Bldr
Primary Suite
- Double Vanity
- Bath-Private
- Separate Shower
- Floors - Carpet
Interior Details
- Dishwasher
- Disposal
- Microwave Above Stove
- Tankless H20
- Smoke Detector
- Attic Pull-Down Access
Parking & Garage
- Garage Attached
- Front Entry
Exterior Features
- Patio
- Back Porch - Covered
H O A & Association
- Common Area Maintenance
- Pool
Property Overview
Utilities & Systems
- Central
- Heat Pump 2nd Lvl
- Split System
- Zoned
- Gas 1st Lvl
- Heat Pump 2nd Lvl
- Split System
- Zoned
Listing Agent Information
Details provided by Consolidated MLS and may not match the public record. Learn more. The information is being provided by Consolidated Multiple Listing Service, Inc. Information deemed reliable but not guaranteed. Information is provided for consumers' personal, non-commercial use, and may not be used for any purpose other than the identification of potential properties for purchase. © 2025 Consolidated Multiple Listing Service, Inc. All Rights Reserved.


