

$237,348
219 Bangalore Way
Gilbert, SC 29054
About This Property
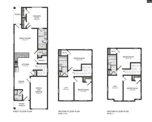
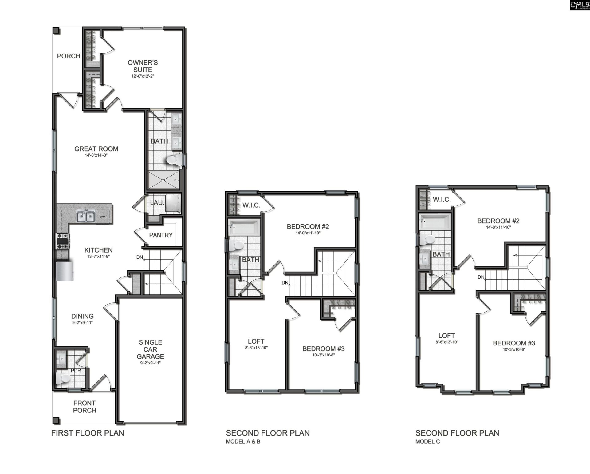
This thoughtfully designed floor plan offers everything you need for easy, everyday living. The main-level owner’s suite features dual closets for ultimate organization. The kitchen includes a spacious walk-in pantry and opens to the living area, creating the perfect space for family gatherings or entertaining friends.
Enjoy outdoor living on the covered porch just off the main living space. Upstairs, two additional bedrooms and a versatile loft provide endless possibilities for a home office, playroom, or media space. With a garage for parking or storage, this home delivers comfort and convenience in every detail.
Disclaimer: CMLS has not reviewed and, therefore, does not endorse vendors who may appear in listings.
COL MLS # 624175
Quick Facts
Time on Site
3 months ago
Property Type
Residential
Year Built
2026
Lot Size
4,791 sqft
Price/Sq.Ft.
$162
Property Details
Schools
Features & Amenities
Location & Map
Map View
Loading map...
Additional Information
Lot & Land
Parking & Garage
- Garage Attached
- Front Entry
Exterior Features
Property Overview
Utilities & Systems
Listing Agent Information
Details provided by Consolidated MLS and may not match the public record. Learn more. The information is being provided by Consolidated Multiple Listing Service, Inc. Information deemed reliable but not guaranteed. Information is provided for consumers' personal, non-commercial use, and may not be used for any purpose other than the identification of potential properties for purchase. © 2025 Consolidated Multiple Listing Service, Inc. All Rights Reserved.


