




$313,900
1695 Hidden Garden Lane
Gilbert, SC 29054
About This Property
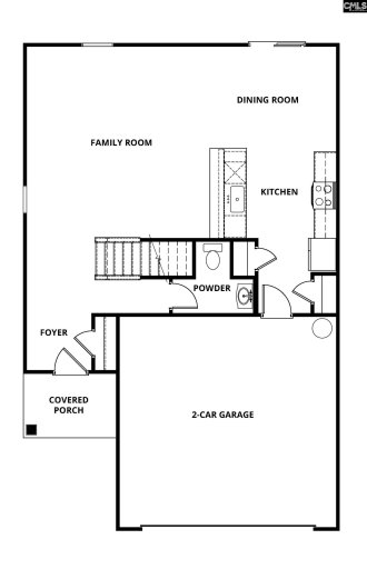
This home has an open layout that connects a spacious living room, dining room with luxurious wood-look vinyl flooring and chef-ready kitchen. The kitchen includes energy-efficient appliances, granite countertops, recessed lighting and more! Discover your dream master suite, featuring a high vaulted ceiling, huge windows, an expansive private bath and two walk-in closets.
The upstairs level is rounded out by two generously-sized secondary bedrooms, a second full bath and convenient laundry room. Ask about our interest rate specials, contact the LGI Homes Information Center for more details! Disclaimer: CMLS has not reviewed and, therefore, does not endorse vendors who may appear in listings.
COL MLS # 631174
Quick Facts
Time on Site
8 days ago
Property Type
Residential
Year Built
2024
Lot Size
7,361 sqft
Price/Sq.Ft.
$155
Property Details
Schools
Features & Amenities
Features:
- Ceiling Fan
- Garage Opener
- Smoke Detector
- Attic Pull-Down Access
Location & Map
Map View
Loading map...
Additional Information
Laundry
Lot & Land
Room Details
- Pantry
- Counter Tops-Granite
- Cabinets-Painted
- Recessed Lights
- Floors-Luxury Vinyl Plank
- Ceiling Fan
- Recessed Lights
- Floors-Luxury Vinyl Plank
- Recessed Lights
- Floors-Luxury Vinyl Plank
Primary Suite
- Closet-His & Her
- Bath-Private
- Recessed Lighting
- Floors - Carpet
Interior Details
- Dishwasher
- Disposal
- Icemaker
- Refrigerator
- Microwave Above Stove
- Tankless H20
- Gas Water Heater
- Ceiling Fan
- Garage Opener
- Smoke Detector
- Attic Pull-Down Access
Parking & Garage
- Garage Attached
- Front Entry
Exterior Features
Property Overview
Utilities & Systems
Listing Agent Information
Details provided by Consolidated MLS and may not match the public record. Learn more. The information is being provided by Consolidated Multiple Listing Service, Inc. Information deemed reliable but not guaranteed. Information is provided for consumers' personal, non-commercial use, and may not be used for any purpose other than the identification of potential properties for purchase. © 2025 Consolidated Multiple Listing Service, Inc. All Rights Reserved.


