




$810,997
5054 Carolina North Drive
Gastonia, NC 28056
About This Property
Welcome to Carolina North!!! Huge 1-3 acre homesites!!! Peaceful country setting with all the conveniences just minutes away!!
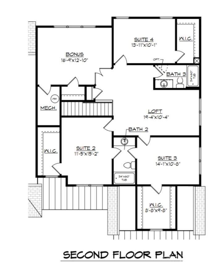
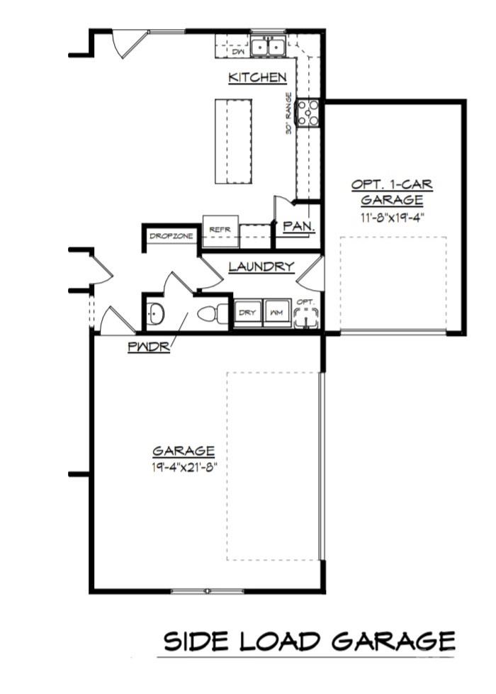
This listing features our Hampshire Plan...primary down...with great included features like crawlspace foundations, side load garages, deluxe gourmet kitchens with large islands, and covered back decks!!!
We have 8 lots in the community and multiple floor plans to choose from. Close to Lake Wylie for shopping, restaurants, and incredible recreation!! Contact today for more information and status updates on inventory homes that are under construction.
CAR MLS # 286164467
Quick Facts
Time on Site
7 months ago
Property Type
Residential
Year Built
2025
Price/Sq.Ft.
$258
Property Details
Schools
Features & Amenities
Features:
- Drop Zone
- Garden Tub
- Kitchen Island
- Open Floorplan
- Pantry
Location & Map
Map View
Loading map...
Additional Information
Utilities
- Septic Installed
- Sewage Pump
- Electricity Connected
- Natural Gas
- Well
Lot And Land
- Level
Agent Contacts
- Palmetto Park Realty Team Fort Mill: 803.548.6123
Interior Details
- Forced Air
- Natural Gas
- Carpet
- Laminate
- Tile
- Insulated Door(s)
- Insulated Window(s)
- Laundry Room
- Drop Zone
- Garden Tub
- Kitchen Island
- Open Floorplan
- Pantry
- Family Room
- Gas Unvented
- Gas Vented
- Outside
Exterior Features
- Architectural Shingle
- Fiber Cement
- Covered
- Deck
Parking And Garage
- Attached Garage
- Garage Faces Side
Financial Information
Dwelling And Structure
- Farmhouse
- Engineered Wood Products
Basement And Foundation
- Crawl Space
Zoning And Restrictions
Square Footage And Levels
- Two
Additional C A R Information
IDX information is provided exclusively for consumers' personal, non-commercial use only; it may not be used for any purpose other than to identify prospective properties consumers may be interested in purchasing. Data is deemed reliable but is not guaranteed accurate by the MLS GRID. Use of this site may be subject to an end user license agreement. Based on information submitted to the MLS GRID as of Fri, Mar 6, 2026. All data is obtained from various sources and may not have been verified by broker or MLS GRID. Supplied Open House Information is subject to change without notice. All information should be independently reviewed and verified for accuracy. Properties may or may not be listed by the office/agent presenting the information. Some IDX listings have been excluded from this website. Any use by you of search facilities of data on the site, other than by a consumer looking to purchase real estate, is prohibited. DMCA Notice: Palmetto Park Realty respects the intellectual property rights of others. If you believe that your work has been copied in a way that constitutes copyright infringement, please provide our designated agent with written notice containing the following information: (1) identification of the copyrighted work claimed to have been infringed; (2) identification of the material that is claimed to be infringing; (3) your contact information; (4) a statement that you have a good faith belief that use of the material is not authorized; and (5) a statement that the information in the notification is accurate and you are authorized to act on behalf of the copyright owner. Please send DMCA notices to: [email protected]