




$284,999
90 Fernhill Lane
Fountain Inn, SC 29644
About This Property
This Property Has Been Sold
This property sold 1 year ago and is no longer available for purchase.
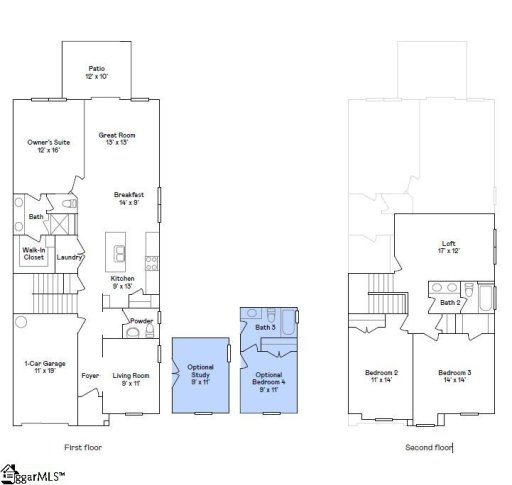
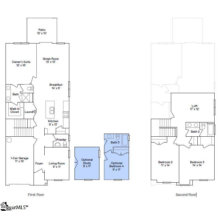
View active listings in Stoneledge Cottages →We are on our last building of homes for sale for phase 1! This home is expected to be complete in MARCH 2025. The home is an open concept floor plan with the Primary bedroom + full bath, as well as, guest bedroom + full bath on the first floor!
Upstairs you'll find an additional 2 bedrooms along with a loft upstairs. The kitchen features quartz countertops, an upgraded gas range, tile backsplash. Located in Fountain Inn this brand new neighborhood Stoneledge Cottages features a swimming pool and cabana and is located right by Heritage Park and minutes from downtown Simpsonville with plenty of shopping and restaurants close by!
Convenience is what this community is about. Landscaping is taken care of here!
GVL MLS # 1546535
Quick Facts
Time on Site
1 year ago
Property Type
Residential
Year Built
2025
Lot Size
2,178 sqft
Price/Sq.Ft.
$144
HOA Fees
$170/mo
Property Details
Schools
Features & Amenities
Features:
- High Ceilings
- Ceiling Smooth
- Tray Ceiling(s)
- Open Floorplan
- Walk-In Closet(s)
- Countertops – Quartz
- Pantry
Location & Map
Map View
Loading map...
Additional Information
Community
- Common Areas
- Street Lights
- Lawn Maintenance
Lot & Land
Tax Information
Interior Details
- Carpet
- Luxury Vinyl
- Dishwasher
- Disposal
- Free-Standing Gas Range
- Microwave
- Electric Water Heater
- 2nd Floor
- Walk-in
- Electric Dryer Hookup
- Laundry Room
- High Ceilings
- Ceiling Smooth
- Tray Ceiling(s)
- Open Floorplan
- Walk-In Closet(s)
- Countertops – Quartz
- Pantry
Parking & Garage
- Attached
- Concrete
- Garage Door Opener
Exterior Features
- Composition
- Attached
- Concrete
- Garage Door Opener
- Slab
- Patio
- Front Porch
- Brick Veneer
- Vinyl Siding
H O A & Association
- Maintenance Structure
- Maintenance Grounds
Property Overview
- Two
- Craftsman
Utilities & Systems
- Public Sewer
- Central Air
- Electric
- Damper Controlled
- Forced Air
- Natural Gas
- Damper Controlled
- Underground Utilities
- Cable Available
- Public
Listing Agent Information
The information is being provided by Greater Greenville MLS. Information deemed reliable but not guaranteed. Information is provided for consumers' personal, non-commercial use, and may not be used for any purpose other than the identification of potential properties for purchase. Copyright 2025 Greater Greenville MLS. All Rights Reserved.
You Might Also Like...
Interested in selling in Stoneledge Cottages?


