




$277,999
7 Vine House Drive
Fountain Inn, SC 29644
About This Property
This Property Has Been Sold
This property sold 5 months ago and is no longer available for purchase.
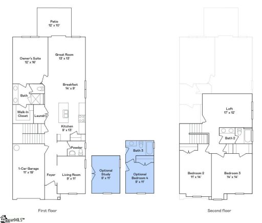
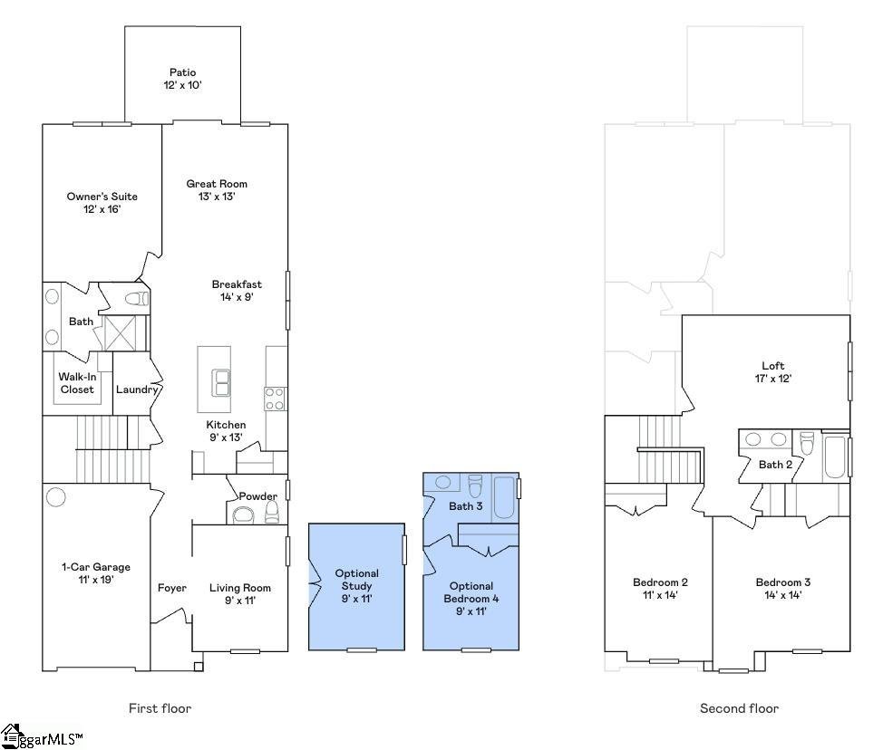
View active listings in Stoneledge Cottages →Welcome home to the beautiful Berkley. This home embodies sophistication and elegance. As you enter the home you will find a beautiful light-filled study with French doors.
The chef's kitchen features white shaker style cabinets with a stunning quartz countertop, tile backsplash, and a 5-burner gas range with griddle. The kitchen is open to the breakfast room and large great room where you can enjoy hosting friends and family. The stunning primary suite on main features a spa-like en-suite with tiled shower, private water closet, and large walk-in closet.
Upstairs offers an amazing loft space which is great for another family room, media room, or craft room...the possibilities are endless!! Plus, two more secondary bedrooms, full bath with dual sinks, and unconditioned storage space.
GVL MLS # 1564270
Quick Facts
Time on Site
9 months ago
Property Type
Residential
Lot Size
2,613 sqft
Price/Sq.Ft.
$140
HOA Fees
$170/mo
Property Details
Schools
Features & Amenities
Features:
- High Ceilings
- Ceiling Smooth
- Open Floorplan
- Walk-In Closet(s)
- Countertops – Quartz
- Pantry
Location & Map
Map View
Loading map...
Additional Information
Community
- Pool
- Sidewalks
- Lawn Maintenance
- Landscape Maintenance
Lot & Land
- 1/2 Acre or Less
Tax Information
Interior Details
- Carpet
- Luxury Vinyl
- Dishwasher
- Disposal
- Free-Standing Gas Range
- Microwave
- Electric Water Heater
- 1st Floor
- Laundry Closet
- Electric Dryer Hookup
- Multiple Hookups
- High Ceilings
- Ceiling Smooth
- Open Floorplan
- Walk-In Closet(s)
- Countertops – Quartz
- Pantry
Parking & Garage
- Attached
- Concrete
- Garage Door Opener
Exterior Features
- Composition
- Attached
- Concrete
- Garage Door Opener
- Slab
- Patio
- Stone
- Vinyl Siding
H O A & Association
- Common Area Ins.
- Maintenance Structure
- Maintenance Grounds
- Pool
- Street Lights
- Restrictive Covenants
Property Overview
- Two
- Craftsman
Utilities & Systems
- Public Sewer
- Central Air
- Electric
- Damper Controlled
- Forced Air
- Natural Gas
- Damper Controlled
- Underground Utilities
- Cable Available
- Public
Listing Agent Information
The information is being provided by Greater Greenville MLS. Information deemed reliable but not guaranteed. Information is provided for consumers' personal, non-commercial use, and may not be used for any purpose other than the identification of potential properties for purchase. Copyright 2025 Greater Greenville MLS. All Rights Reserved.
You Might Also Like...
Interested in selling in Stoneledge Cottages?


