


$424,900
616 Hollybank Street
Fountain Inn, SC 29644
About This Property
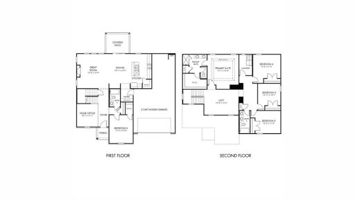
Brand new, energy-efficient home available NOW! Wake up on the right side of the bed in the Jamestown’s luxurious primary suite, complete with tray ceiling, dual sinks, and a walk-in closet. White cabinets with white quartz countertops, EVP flooring, and carpet in our Essence Package.
Your dream home is available now in the stunning amenity-rich community, Wexford Park. Located just minutes from downtown Fountain Inn, this community offers single-family homes ranging from 1,835 sq. ft.
to 2,995 sq. ft. Spend weekends exploring local shopping and dining in downtown Fountain Inn or at outdoor attractions such as Woodside Park.
WUM MLS # 1156033293
Quick Facts
Time on Site
6 days ago
Property Type
Residential
Year Built
2026
Lot Size
7,405 sqft
Property Details
Schools
Features & Amenities
Location & Map
Map View
Loading map...
Additional Information
Lot & Land
- Level
- OutsideCityLimits
- Subdivision
Community & H O A
- Pools
- RecreationFacilities
- CommonGroundsArea
- Playground
- TennisCourts
Tax Information
Parking & Garage
- Attached
- Garage
- Basement
- Driveway
- GarageDoorOpener
Property Details
Exterior Features
- Architectural
- Shingle
- Brick
- CementSiding
Interior Features
- Carpet
- CeramicTile
- Vinyl
- ConvectionOven
- Dishwasher
- Disposal
- GasRange
- Microwave
- DiningRoom
- Loft
- Office
- TrayCeilings
- DualSinks
- Fireplace
- GraniteCounters
- BathInPrimaryBedroom
- PullDownAtticStairs
- ShowerOnly
- UpperLevelPrimary
- VaultedCeilings
- WalkInClosets
- WalkInShower
- Loft
Systems & Utilities
- CentralAir
- ForcedAir
- ForcedAir
- NaturalGas
- CableAvailable
- ElectricityAvailable
- UndergroundUtilities
Listing Agent Information
This information is deemed reliable, but not guaranteed. Neither, the Western Upstate Association of REALTORS®, Inc. or Western Upstate Multiple Listing Service of South Carolina Inc., nor the listing broker, nor their agents or subagents are responsible for the accuracy of the information. The buyer is responsible for verifying all information. This information is provided by the Western Upstate Association of REALTORS®, Inc. and Western Upstate Multiple Listing Service of South Carolina, Inc. for use by its members and is not intended for the use for any other purpose. Information is provided for consumers' personal, non-commercial use, and may not be used for any purpose other than the identification of potential properties for purchase. The data relating to real estate for sale on this Web site comes in part from the Broker Reciprocity Program of the Western Upstate Association of REALTORS®, Inc. and the Western Upstate Multiple Listing Service, Inc.


