




$304,999
401 Meadow Gate Court
Fountain Inn, SC 29644
About This Property
This Property Has Been Sold
This property sold 13 days ago and is no longer available for purchase.
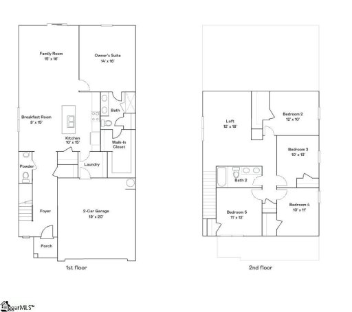
View active listings in Bridgeway →The Frost floorplan at Bridgeway in Fountain Inn, is the perfect home for a growing family. With 5 bedrooms and 3 bathrooms, this spacious two-story design provides room for everyone to thrive. The first floor features an open layout, with the family room, kitchen, and breakfast area seamlessly integrated to create a warm and inviting space for daily living and entertaining.
A secluded secondary bedroom is perfect for guests, along with a convenient two-car garage. Upstairs, a versatile flex room offers extra living space, while four bedrooms, including a large owner’s suite, provide comfort and privacy. The Frost floorplan combines style, function, and space for the entire family to enjoy.
It's the ideal home for making lasting memories with your loved ones. It's ideal for families seeking a peaceful neighborhood with convenient connections to Greenville.
GVL MLS # 1582500
Quick Facts
Time on Site
3 months ago
Property Type
Residential
Year Built
2026
Lot Size
7,840 sqft
Price/Sq.Ft.
$118
HOA Fees
$244/Other
Property Details
Schools
Features & Amenities
Features:
- Ceiling Smooth
- Open Floorplan
- Countertops-Other
- Countertops – Quartz
- Pantry
Location & Map
Map View
Loading map...
Additional Information
Community
- Common Areas
- Street Lights
- Playground
Lot & Land
- 1/2 Acre or Less
Tax Information
Interior Details
- Carpet
- Laminate
- Dishwasher
- Disposal
- Free-Standing Gas Range
- Microwave
- Electric Water Heater
- 2nd Floor
- Walk-in
- Electric Dryer Hookup
- Laundry Room
- Ceiling Smooth
- Open Floorplan
- Countertops-Other
- Countertops – Quartz
- Pantry
Parking & Garage
- Attached
- Paved
- Garage Door Opener
Exterior Features
- Composition
- Attached
- Paved
- Garage Door Opener
- Slab
- Patio
- Vinyl Siding
H O A & Association
Property Overview
- Two
- Craftsman
Utilities & Systems
- Central Air
- Electric
- Forced Air
- Natural Gas
- Sewer Available
- Public
Listing Agent Information
The information is being provided by Greater Greenville MLS. Information deemed reliable but not guaranteed. Information is provided for consumers' personal, non-commercial use, and may not be used for any purpose other than the identification of potential properties for purchase. Copyright 2025 Greater Greenville MLS. All Rights Reserved.
You Might Also Like...
Interested in selling in Bridgeway?


