




$216,420
240 Addlestone Circle
Fountain Inn, SC 29644
About This Property
This Property Has Been Sold
This property sold 6 years ago and is no longer available for purchase.
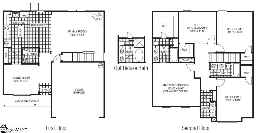
View active listings in Gulliver Oaks →LAST CHANCE! ONLY 9 HOMES LEFT! The Pinehurst has 2231 SQ.
FT. With 4 bedrooms, 2 ½ baths, and 2 Car Garage. When approaching the home, you will notice a beautiful front porch and the 2-car garage.
When walking into the entrance you will notice the 9-foot ceilings and the large dining room, which has a pass-through to the kitchen. The family is spacious with a gas log fireplace. The kitchen with 36” cabinets and granite countertops and stainless steel appliances is open to the family room and has a breakfast area.
GVL MLS # 1392644
Quick Facts
Time on Site
7 years ago
Property Type
Residential
Lot Size
11,325 sqft
HOA Fees
$525/yr
Property Details
Schools
Features & Amenities
Features:
- High Ceilings
- Ceiling Fan(s)
- Vaulted Ceiling(s)
- Ceiling Smooth
- Granite Counters
- Open Floorplan
- Walk-In Closet(s)
- Pantry
Location & Map
Map View
Loading map...
Additional Information
Community
- Street Lights
- Sidewalks
Lot & Land
- 1/2 Acre or Less
- Corner Lot
- Sidewalk
Tax Information
Interior Details
- Carpet
- Vinyl
- Dishwasher
- Disposal
- Range
- Microwave
- Electric Water Heater
- 2nd Floor
- Walk-in
- Laundry Room
- High Ceilings
- Ceiling Fan(s)
- Vaulted Ceiling(s)
- Ceiling Smooth
- Granite Counters
- Open Floorplan
- Walk-In Closet(s)
- Pantry
- Gas Log
Parking & Garage
- Attached
- Paved
Exterior Features
- Architectural
- Attached
- Paved
- Slab
- Patio
- Stone
- Vinyl Siding
H O A & Association
- Street Lights
- Restrictive Covenants
Property Overview
- Two
- Traditional
- Craftsman
Utilities & Systems
- Public Sewer
- Central Air
- Electric
- Damper Controlled
- Forced Air
- Natural Gas
- Damper Controlled
- Public
Listing Agent Information
The information is being provided by Greater Greenville MLS. Information deemed reliable but not guaranteed. Information is provided for consumers' personal, non-commercial use, and may not be used for any purpose other than the identification of potential properties for purchase. Copyright 2025 Greater Greenville MLS. All Rights Reserved.
You Might Also Like...
Interested in selling in Gulliver Oaks?


