




$298,990
233 Green Pasture Road
Fountain Inn, SC 29644
About This Property
This Property Has Been Sold
This property sold 3 months ago and is no longer available for purchase.
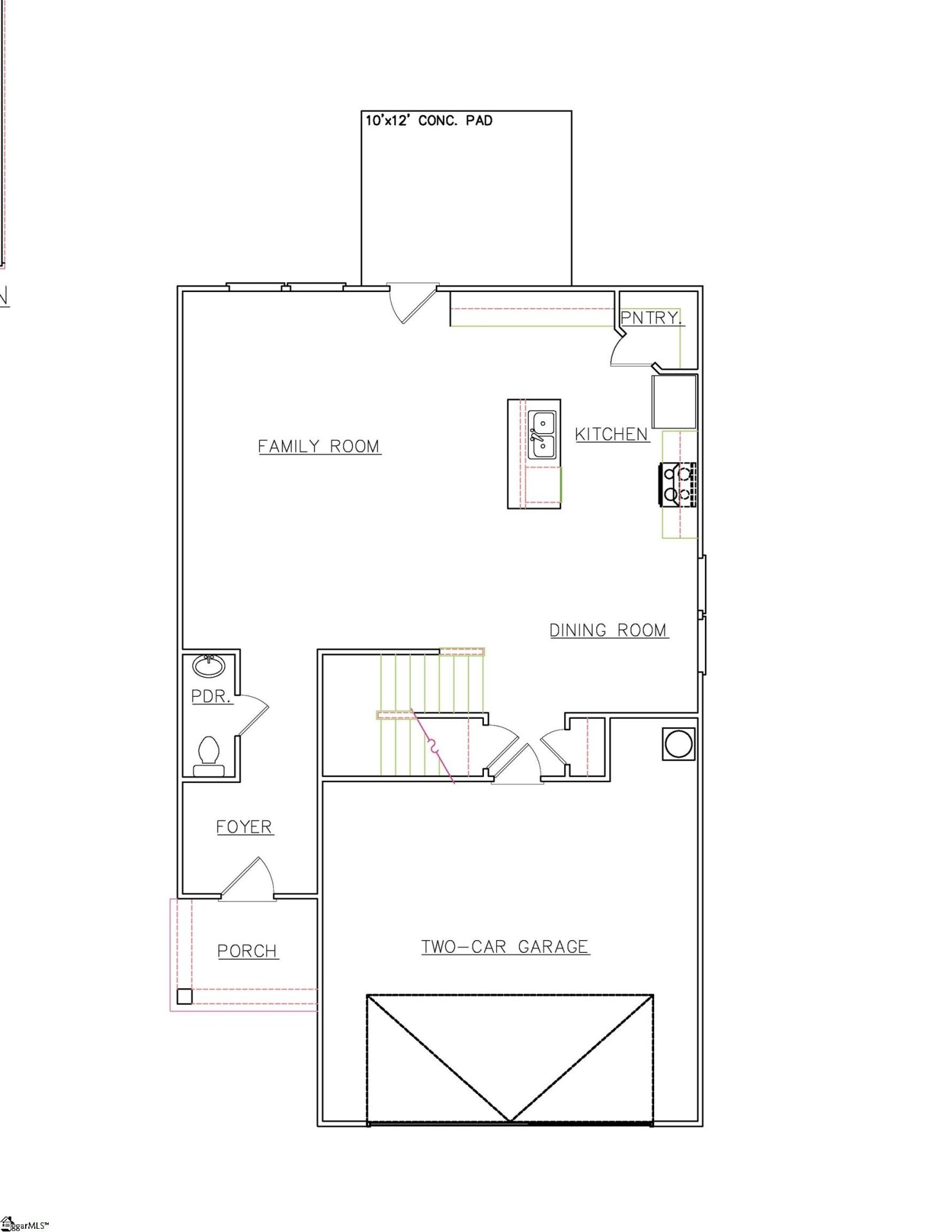
View active listings in Reedy Creek Estates →Welcome to the stunning Winston plan, an expansive 2,100-square-foot home that boasts five generously sized bedrooms and three and a half beautifully appointed baths, perfect for growing families. The open-concept first floor is a dream for entertaining, featuring a stylish kitchen that seamlessly flows into a spacious living area, creating an inviting atmosphere for gatherings. With the added convenience of a two-car garage, this home offers both functionality and flair.
Nestled in a vibrant community brimming with amenities, you'll enjoy easy access to a variety of shopping, dining, and recreational options, making the Winston not just a comfortable retreat but a dynamic hub for an active lifestyle.
GVL MLS # 1572543
Quick Facts
Time on Site
5 months ago
Property Type
Residential
Year Built
2025
Lot Size
6,098 sqft
Price/Sq.Ft.
$142
HOA Fees
$535/yr
Property Details
Schools
Features & Amenities
Features:
- Ceiling Fan(s)
- Ceiling Smooth
- Granite Counters
- Open Floorplan
- Soaking Tub
- Walk-In Closet(s)
- Pantry
Location & Map
Map View
Loading map...
Additional Information
Community
- Common Areas
- Playground
Lot & Land
- 1/2 Acre or Less
Tax Information
Interior Details
- Carpet
- Vinyl
- Dishwasher
- Electric Oven
- Range
- Microwave
- Electric Water Heater
- 2nd Floor
- Laundry Closet
- Walk-in
- Electric Dryer Hookup
- Washer Hookup
- Ceiling Fan(s)
- Ceiling Smooth
- Granite Counters
- Open Floorplan
- Soaking Tub
- Walk-In Closet(s)
- Pantry
Parking & Garage
- Attached
- Paved
- Driveway
Exterior Features
- Composition
- Attached
- Paved
- Driveway
- Slab
- Patio
- Brick Veneer
- Vinyl Siding
H O A & Association
- Common Area Ins.
- Other/See Remarks
- By-Laws
Property Overview
- Two
- Traditional
- Craftsman
Utilities & Systems
- Public Sewer
- Heat Pump
- Electric
- Heat Pump
- Cable Available
- Public
Listing Agent Information
The information is being provided by Greater Greenville MLS. Information deemed reliable but not guaranteed. Information is provided for consumers' personal, non-commercial use, and may not be used for any purpose other than the identification of potential properties for purchase. Copyright 2025 Greater Greenville MLS. All Rights Reserved.
You Might Also Like...
Interested in selling in Reedy Creek Estates?


