




$319,999
211 Meadow Gate Court
Fountain Inn, SC 29644
About This Property
This Property Has Been Sold
This property sold 2 months ago and is no longer available for purchase.
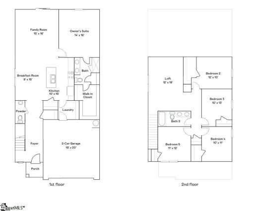
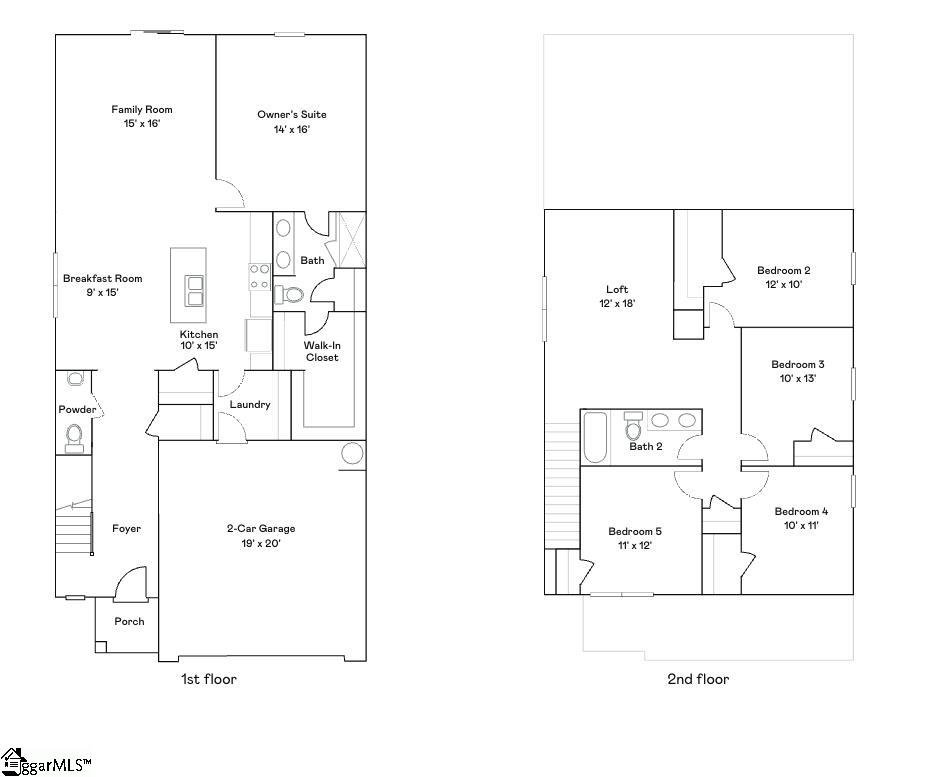
View active listings in Bridgeway →The Emerson plan at Bridgeway in Fountain Inn, SC, is a dream family home. With 5 bedrooms and 2.5 bathrooms, this spacious two-story design offers an open, airy layout perfect for modern living.
The heart of the home is the gourmet kitchen with a large center island, perfect for family meals and gatherings. The cozy family room flows seamlessly into the breakfast area, creating a warm, inviting space. The owner's suite on the main floor offers a private retreat, while upstairs features a versatile loft and four spacious bedrooms, three with walk-in closets, providing room for everyone to grow and thrive.
It's the ideal home for making lasting memories with your loved ones. It's ideal for families seeking a peaceful neighborhood with convenient connections to Greenville.
GVL MLS # 1576116
Quick Facts
Time on Site
5 months ago
Property Type
Residential
Year Built
2025
Lot Size
7,840 sqft
Price/Sq.Ft.
$139
Property Details
Schools
Features & Amenities
Features:
- Ceiling Smooth
- Open Floorplan
- Countertops-Other
- Countertops – Quartz
- Pantry
Location & Map
Map View
Loading map...
Additional Information
Community
- Common Areas
- Street Lights
- Playground
Lot & Land
- 1/2 Acre or Less
Tax Information
Interior Details
- Carpet
- Laminate
- Dishwasher
- Disposal
- Free-Standing Gas Range
- Microwave
- Electric Water Heater
- 2nd Floor
- Walk-in
- Electric Dryer Hookup
- Laundry Room
- Ceiling Smooth
- Open Floorplan
- Countertops-Other
- Countertops – Quartz
- Pantry
Parking & Garage
- Attached
- Paved
- Garage Door Opener
Exterior Features
- Composition
- Attached
- Paved
- Garage Door Opener
- Slab
- Patio
- Vinyl Siding
H O A & Association
Property Overview
- Two
- Craftsman
Utilities & Systems
- Central Air
- Electric
- Forced Air
- Natural Gas
- Sewer Available
- Public
Listing Agent Information
The information is being provided by Greater Greenville MLS. Information deemed reliable but not guaranteed. Information is provided for consumers' personal, non-commercial use, and may not be used for any purpose other than the identification of potential properties for purchase. Copyright 2025 Greater Greenville MLS. All Rights Reserved.
You Might Also Like...
Interested in selling in Bridgeway?


