


$208,900
100 Addlestone Circle
Fountain Inn, SC 29644
About This Property
This Property Has Been Sold
This property sold 6 years ago and is no longer available for purchase.
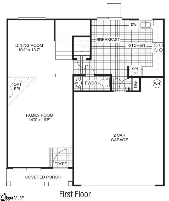
View active listings in Gulliver Oaks →The Concord has 2060 SQ.FT. with 4 bedrooms, and 2 ½ baths.
. When approaching the home, you will notice a beautiful front porch and the 2-car garage. When walking into the entrance you will notice the 9-foot ceilings and the large dining room, which has a pass-through to the kitchen.
The family is spacious with a gas log fireplace. The kitchen with 36” cabinets and granite counter-tops and stainless steel appliances is open to the family room and has a breakfast area. Upstairs is a large master bedroom with vaulted ceiling and large walk-in closet.
GVL MLS # 1396109
Quick Facts
Time on Site
7 years ago
Property Type
Residential
Lot Size
6,969 sqft
HOA Fees
$525/yr
Property Details
Schools
Features & Amenities
Features:
- High Ceilings
- Ceiling Fan(s)
- Vaulted Ceiling(s)
- Ceiling Smooth
- Granite Counters
- Open Floorplan
- Soaking Tub
- Walk-In Closet(s)
- Pantry
- Radon System
Location & Map
Map View
Loading map...
Additional Information
Community
- Common Areas
- Street Lights
- Sidewalks
Lot & Land
- 1/2 Acre or Less
Tax Information
Interior Details
- Carpet
- Laminate
- Vinyl
- Dishwasher
- Disposal
- Range
- Microwave
- Electric Water Heater
- 2nd Floor
- Laundry Closet
- High Ceilings
- Ceiling Fan(s)
- Vaulted Ceiling(s)
- Ceiling Smooth
- Granite Counters
- Open Floorplan
- Soaking Tub
- Walk-In Closet(s)
- Pantry
- Radon System
- Gas Log
Parking & Garage
- Attached
- Paved
Exterior Features
- Architectural
- Attached
- Paved
- Slab
- Patio
- Brick Veneer
- Vinyl Siding
H O A & Association
Property Overview
- Two
- Traditional
- Craftsman
Utilities & Systems
- Central Air
- Electric
- Damper Controlled
- Natural Gas
- Damper Controlled
- Sewer Available
- Cable Available
- Public
Listing Agent Information
The information is being provided by Greater Greenville MLS. Information deemed reliable but not guaranteed. Information is provided for consumers' personal, non-commercial use, and may not be used for any purpose other than the identification of potential properties for purchase. Copyright 2025 Greater Greenville MLS. All Rights Reserved.
You Might Also Like...
Interested in selling in Gulliver Oaks?


