


$324,239
713 Hadley Place
Enoree, SC 29335
About This Property
This Property Has Been Sold
This property sold 4 months ago and is no longer available for purchase.
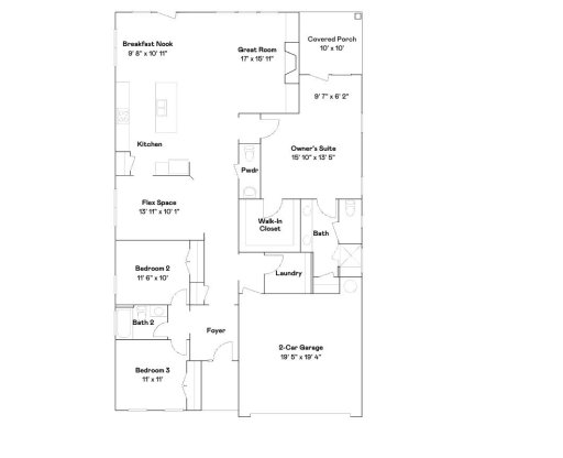
View active listings in Arrowood Acres →The Dawson floorplan at Arrowood Acres offers thoughtfully designed single-story living with a focus on comfort, functionality, and style. This home features an open-concept layout that seamlessly connects the family room, gourmet kitchen, and breakfast nook—creating an ideal space for both daily living and entertaining. A flexible additional room near the main living area allows for customization as a formal dining room, home office, or playroom.
Two secondary bedrooms share a full bath, while the private owner's suite is tucked away for privacy and includes a spacious walk-in closet, a well-appointed bathroom, and direct access to a covered porch—perfect for relaxing outdoors. With its balance of open spaces and quiet retreats, the Dawson is an excellent choice for those seeking modern, single-level living in the peaceful community of Enoree, SC.
SPN MLS # 327328
Quick Facts
Time on Site
8 months ago
Property Type
Residential
Year Built
2025
Lot Size
7,840 sqft
Price/Sq.Ft.
$120
Property Details
Schools
Features & Amenities
Features:
- Cable Available
- Walk-In Closet(s)
- Ceiling - Smooth
- Solid Surface Counters
- Open Floorplan
- Walk-In Pantry
Location & Map
Map View
Loading map...
Additional Information
Basement
Security
- Smoke Detector(s)
Community
- Common Areas
Lot & Land
- Sloped
Primary Suite
- Bath - Full
- Double Vanity
- Owner on 2nd level
- Shower Only
- Walk-in Closet
Interior Details
- Carpet
- Luxury Vinyl
- Dishwasher
- Disposal
- Electric Oven
- Free-Standing Range
- Microwave
- Range - Smooth Top
- Bonus
- Breakfast Area
- Tilt-Out
- 2nd Floor
- Electric Dryer Hookup
- Walk-In
- Washer Hookup
- Cable Available
- Walk-In Closet(s)
- Ceiling - Smooth
- Solid Surface Counters
- Open Floorplan
- Walk-In Pantry
New Construction
Parking & Garage
- 2 Car Attached
- Garage Door Opener
Exterior Features
- Composition
- Aluminum/Vinyl Trim
- Slab
- Stone
- Vinyl Siding
H O A & Association
- Common Area
Property Overview
- Two
- Craftsman
Utilities & Systems
- Public Sewer
- Central Air
- Zoned
- Forced Air
- Heat Pump
- Public
Listing Agent Information
You Might Also Like...
Interested in selling in Arrowood Acres?


