


$324,239
713 Hadley Place
Enoree, SC 29630
About This Property
This Property Has Been Sold
This property sold 4 months ago and is no longer available for purchase.
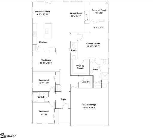
View active listings in Arrowood Acres →The Dawson floorplan at Arrowood Acres offers thoughtfully designed single-story living with a focus on comfort, functionality, and style. This home features an open-concept layout that seamlessly connects the family room, gourmet kitchen, and breakfast nook—creating an ideal space for both daily living and entertaining. A flexible additional room near the main living area allows for customization as a formal dining room, home office, or playroom.
Two secondary bedrooms share a full bath, while the private owner's suite is tucked away for privacy and includes a spacious walk-in closet, a well-appointed bathroom, and direct access to a covered porch—perfect for relaxing outdoors. With its balance of open spaces and quiet retreats, the Dawson is an excellent choice for those seeking modern, single-level living in the peaceful community of Enoree, SC.
GVL MLS # 1565486
Quick Facts
Time on Site
8 months ago
Property Type
Residential
Price/Sq.Ft.
$109
HOA Fees
$130/mo
Property Details
Schools
Features & Amenities
Features:
- High Ceilings
- Ceiling Smooth
- Open Floorplan
- Walk-In Closet(s)
- Countertops – Quartz
- Pantry
Location & Map
Map View
Loading map...
Additional Information
Community
- Common Areas
Lot & Land
- 1/2 Acre or Less
- Sloped
Tax Information
Interior Details
- Carpet
- Ceramic Tile
- Luxury Vinyl
- Gas Cooktop
- Dishwasher
- Disposal
- Oven
- Double Oven
- Microwave
- Electric Water Heater
- 1st Floor
- Electric Dryer Hookup
- Washer Hookup
- Laundry Room
- High Ceilings
- Ceiling Smooth
- Open Floorplan
- Walk-In Closet(s)
- Countertops – Quartz
- Pantry
- Gas Log
Parking & Garage
- Attached
- Concrete
- Garage Door Opener
- Driveway
Exterior Features
- Composition
- Attached
- Concrete
- Garage Door Opener
- Driveway
- Slab
- Screened
- Vinyl Siding
- Brick Veneer
H O A & Association
- Common Area Ins.
Property Overview
- One and One Half
- Craftsman
Utilities & Systems
- Public Sewer
- Electric
- Damper Controlled
- Natural Gas
- Damper Controlled
- Public
Listing Agent Information
The information is being provided by Greater Greenville MLS. Information deemed reliable but not guaranteed. Information is provided for consumers' personal, non-commercial use, and may not be used for any purpose other than the identification of potential properties for purchase. Copyright 2025 Greater Greenville MLS. All Rights Reserved.
You Might Also Like...
Interested in selling in Arrowood Acres?


