




$273,000
4036 Monetta Drive
Elgin, SC 29045-0000
About This Property
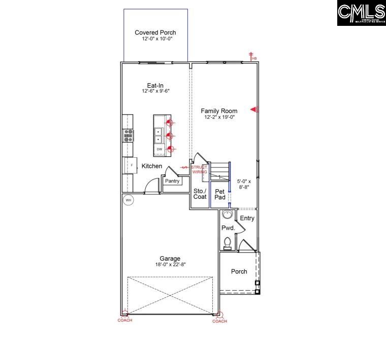
Experience resort-style living in Ellington, where everyday life feels like a getaway. Residents enjoy a cabana, sparkling pool with wading area, lazy river, and sidewalks on both sides of the street that create a welcoming, walkable neighborhood atmosphere. The Highland is a thoughtfully designed three-bedroom, two-and-one-half-bath home that blends comfort and functionality with stylish finishes throughout.
Just off the entry, you’ll find a convenient pet pad, while luxury vinyl plank flooring flows seamlessly across the entire main level. The kitchen is beautifully appointed with granite countertops, a tile backsplash, white cabinetry with crown molding and hardware, pendant lighting, and a stainless-steel gas cooktop. An inviting eat-in area sits just off the kitchen and opens to the covered back porch, creating the perfect space for indoor-outdoor living and entertaining.
Upstairs, a spacious loft welcomes you and offers flexible space for a home office, playroom, or additional living area. Two secondary bedrooms each feature walk-in closets and share a well-appointed bathroom with dual sinks. Tucked at the back of the home for added privacy, the primary suite showcases a boxed ceiling, large, tiled shower with bench seat, dual vanities, and a generous walk-in closet.
COL MLS # 624477
Quick Facts
Time on Site
2 months ago
Property Type
Residential
Year Built
2025
Lot Size
4,791 sqft
Price/Sq.Ft.
$149
Property Details
Schools
Features & Amenities
Features:
- Ceiling Fan
- Smoke Detector
- Attic Pull-Down Access
Location & Map
Map View
Loading map...
Additional Information
Laundry
Lot & Land
Room Details
- Eat In
- Island
- Pantry
- Counter Tops-Granite
- Cabinets-Painted
- Recessed Lights
- Floors-Luxury Vinyl Plank
- Ceiling Fan
- Floors-Luxury Vinyl Plank
Miscellaneous
- Community Pool
- Warranty (New Const) Bldr
- Sidewalk Community
Primary Suite
- Double Vanity
- Bath-Private
- Separate Shower
- Closet-Walk in
Interior Details
- Gas
- Self Clean
- Dishwasher
- Disposal
- Microwave Above Stove
- Tankless H20
- Ceiling Fan
- Smoke Detector
- Attic Pull-Down Access
Parking & Garage
- Garage Attached
- Front Entry
Exterior Features
- Sprinkler
- Front Porch - Covered
- Back Porch - Covered
- Back Porch - Uncovered
H O A & Association
- Common Area Maintenance
- Pool
- Sidewalk Maintenance
- Street Light Maintenance
- Green Areas
Property Overview
Utilities & Systems
- Central
- Zoned
- Gas 1st Lvl
- Zoned
Listing Agent Information
Details provided by Consolidated MLS and may not match the public record. Learn more. The information is being provided by Consolidated Multiple Listing Service, Inc. Information deemed reliable but not guaranteed. Information is provided for consumers' personal, non-commercial use, and may not be used for any purpose other than the identification of potential properties for purchase. © 2025 Consolidated Multiple Listing Service, Inc. All Rights Reserved.


