




$265,000
3028 Monetta Drive
Elgin, SC 29045
About This Property
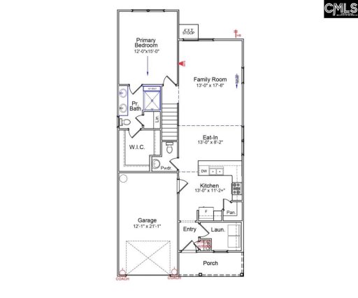
Up to $8,500 in closing costs with our partner lender, Silverton Mortgage, for a limited time! The Evans is a two-story, four bedroom, two-and-one-half bathroom home! The covered front porch welcomes you into the home, where you'll find luxury vinyl plank flooring throughout the main level.
The kitchen is equipped with a gas cooktop, stone gray cabinetry with crown and hardware, granite countertops, and a sizeable pantry. The kitchen overlooks the great room and eat in which features vaulted ceilings! The laundry room is situated on the main level and provides cabinets for added storage and convenience.
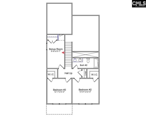
The primary suite on the main level houses a spacious walk-in closet, vaulted ceilings, a full tile shower with a tile bench seat, and dual sinks on the second level, three secondary bedrooms share a full bathroom with two sinks. Come experience the Evans plan at Ellington today! Disclaimer: CMLS has not reviewed and, therefore, does not endorse vendors who may appear in listings.
COL MLS # 631979
Quick Facts
Time on Site
12 days ago
Property Type
Residential
Year Built
2026
Lot Size
4,791 sqft
Price/Sq.Ft.
$155
Property Details
Schools
Features & Amenities
Features:
- Smoke Detector
- Attic Pull-Down Access
Location & Map
Map View
Loading map...
Additional Information
Laundry
Lot & Land
Room Details
- Eat In
- Pantry
- Counter Tops-Granite
- Cabinets-Painted
- Floors-Luxury Vinyl Plank
Miscellaneous
- Community Pool
- Warranty (New Const) Bldr
- Sidewalk Community
Primary Suite
- Double Vanity
- Bath-Private
- Closet-Walk in
Interior Details
- Self Clean
- Smooth Surface
- Dishwasher
- Disposal
- Microwave Above Stove
- Smoke Detector
- Attic Pull-Down Access
Parking & Garage
- Garage Attached
- Front Entry
Exterior Features
- Patio
- Sprinkler
- Back Porch - Uncovered
H O A & Association
- Common Area Maintenance
- Pool
- Sidewalk Maintenance
- Street Light Maintenance
- Green Areas
Property Overview
Utilities & Systems
- Gas 1st Lvl
- Heat Pump 2nd Lvl
Listing Agent Information
Details provided by Consolidated MLS and may not match the public record. Learn more. The information is being provided by Consolidated Multiple Listing Service, Inc. Information deemed reliable but not guaranteed. Information is provided for consumers' personal, non-commercial use, and may not be used for any purpose other than the identification of potential properties for purchase. © 2025 Consolidated Multiple Listing Service, Inc. All Rights Reserved.


