




$360,544
3028 Hallsdale Drive
Elgin, SC 29045
About This Property
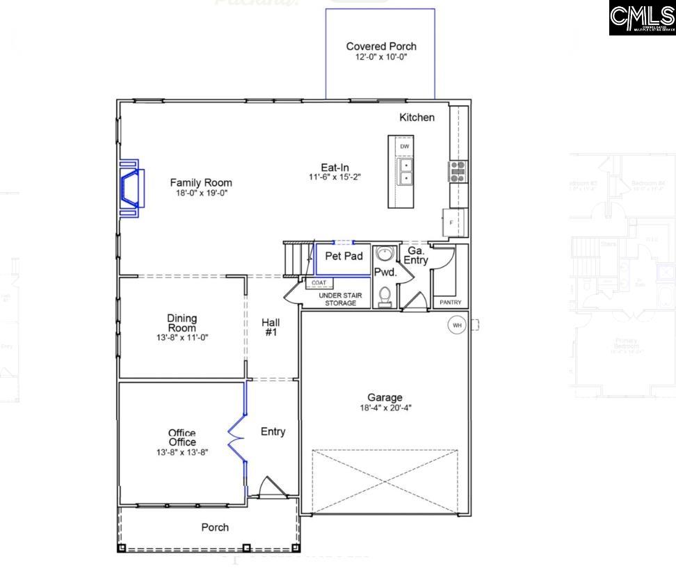
Save up to $10K in closing costs with our partner lender! This Turner plan features five bedrooms and two-and-one-half bathrooms. Enter from the front porch to find luxury vinyl plank flooring that flows throughout the entire main level.
An office with French doors is situated right off the entry, perfect as a flex space or a home office. A formal dining room is located right off the great room. Anchored by a gas fireplace, the great room leads way to the eat-in area and the kitchen.
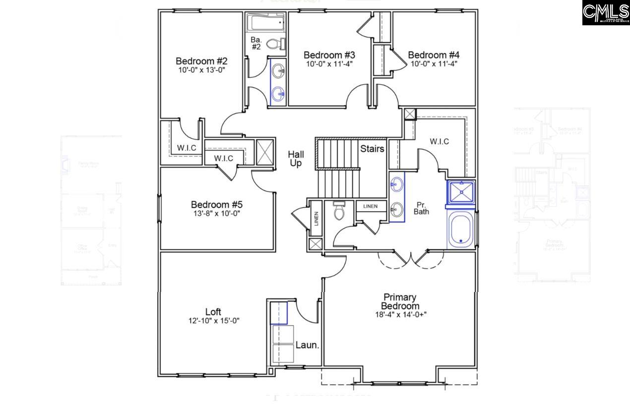
Equipped with a gas cooktop, gray cabinetry with crown and hardware, Dallas white granite countertops, and tile backsplash, the kitchen checks all the boxes. A covered back porch with an extended slab is perfect for enjoying your outdoor space, and a pet pad completes the main level. Hardwood treads on the staircase lead to the second level, where a spacious loft awaits.
COL MLS # 622460
Quick Facts
Time on Site
4 months ago
Property Type
Residential
Year Built
2026
Lot Size
6,534 sqft
Price/Sq.Ft.
$119
Property Details
Schools
Features & Amenities
Features:
- Ceiling Fan
- Garage Opener
- Smoke Detector
- Attic Pull-Down Access
Location & Map
Map View
Loading map...
Additional Information
Laundry
Fireplace
Lot & Land
Room Details
- Eat In
- Island
- Pantry
- Counter Tops-Granite
- Backsplash-Tiled
- Cabinets-Painted
- Recessed Lights
- Floors-Luxury Vinyl Plank
- Fireplace
- Ceiling Fan
- Floors-Luxury Vinyl Plank
- Office
- Loft
Miscellaneous
- Community Pool
- Warranty (New Const) Bldr
- Sidewalk Community
Primary Suite
- Double Vanity
- Tub-Garden
- Bath-Private
- Separate Shower
- Closet-Walk in
- Ceiling Fan
- Floors - Carpet
Interior Details
- Gas
- Self Clean
- Dishwasher
- Disposal
- Microwave Above Stove
- Tankless H20
- Ceiling Fan
- Garage Opener
- Smoke Detector
- Attic Pull-Down Access
Parking & Garage
- Garage Attached
- Front Entry
Exterior Features
- Patio
- Sprinkler
- Gutters - Partial
- Front Porch - Covered
- Back Porch - Covered
H O A & Association
- Common Area Maintenance
- Pool
- Sidewalk Maintenance
- Street Light Maintenance
- Green Areas
Property Overview
Utilities & Systems
- Gas 1st Lvl
- Heat Pump 2nd Lvl
Listing Agent Information
Details provided by Consolidated MLS and may not match the public record. Learn more. The information is being provided by Consolidated Multiple Listing Service, Inc. Information deemed reliable but not guaranteed. Information is provided for consumers' personal, non-commercial use, and may not be used for any purpose other than the identification of potential properties for purchase. © 2025 Consolidated Multiple Listing Service, Inc. All Rights Reserved.


