

$264,745
20 Fawn Spot Court
Elgin, SC 29045
About This Property
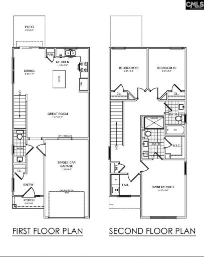
Welcome to Deer Park Luxury Townhomes in Exclusive Woodcreek Farms! Experience upscale living in the heart of the highly sought-after Woodcreek Farms Subdivision. These elegant townhomes showcase contemporary white brick veneer, board and batten and fiber cement-hardy plank exterior with striking black trim, delivering modern curb appeal and timeless style.
Step inside to discover nine-foot ceilings that enhance the open, airy feel throughout the main level. Enjoy luxury vinyl-plank flooring in the foyer, great room, and kitchen, paired with ceramic tile flooring in all bathrooms and the laundry room for both durability and refined design. The open-concept layout seamlessly connects the great room, dining area, and kitchen—perfect for entertaining or everyday living.
The great room is highlighted by a stunning 40-inch linear electric fireplace, adding warmth, ambiance, and a sleek modern focal point. The kitchen features a subway tile backsplash, contemporary finishes, and generous counter space. With three bedrooms and two-and-a-half bathrooms, this 1,362-square-foot townhome offers comfortable living for families, guests, or a home office.
COL MLS # 627143
Quick Facts
Time on Site
2 months ago
Property Type
Residential
Year Built
2025
Lot Size
3,484 sqft
Price/Sq.Ft.
$194
Property Details
Schools
Features & Amenities
Location & Map
Map View
Loading map...
Additional Information
Lot & Land
Parking & Garage
- Garage Attached
- Front Entry
Exterior Features
- Brick-Partial-AbvFound
- Fiber Cement-Hardy Plank
Property Overview
Utilities & Systems
Listing Agent Information
Details provided by Consolidated MLS and may not match the public record. Learn more. The information is being provided by Consolidated Multiple Listing Service, Inc. Information deemed reliable but not guaranteed. Information is provided for consumers' personal, non-commercial use, and may not be used for any purpose other than the identification of potential properties for purchase. © 2025 Consolidated Multiple Listing Service, Inc. All Rights Reserved.


