




$540,000
506 Montague Drive
Easley, SC 29640
About This Property
This Property Has Been Sold
This property sold 2 years ago and is no longer available for purchase.
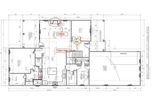
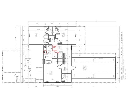
View active listings in Montague Lakes →Construction has started - Move in July! Looking for a home in an established neighborhood on a large lot? This is it! The Hunter Quinn Argyle floor plan has 4 bedrooms, 2 full baths, main floor office, oversized bonus room, large pantry and laundry room. 506 Montague Rd will be gray exterior as shown, but the garage door will be on the RIGHT SIDE instead of the front, see plan image. This beautiful farmhouse style home will have room for everyone. The open floor plan is perfect for entertaining. The kitchen will have stainless steel appliances, gas stove, and large kitchen island. The primary suite is located at the back of the home with double sinks, walk in shower and walk in closet. Upstairs, you will find 3 bedrooms, full bathroom, and an oversized bonus room that could be used as a 5th bedroom. Montague Lakes neighborhood amenities include a swimming pool, club house, common areas, and a neighborhood lake perfect for fishing! Centrally located a quick 20-30 minutes from Greenville, Clemson, and nearby state parks and lakes, its the perfect place to live!
Want Hunter Quinn to build for you? We have several lots in Montague Lakes Subdivision ready to build on OR we can build on a lot you already own. Let's customize one of our great floor plans just for you!
WUM MLS # 1073150503
Quick Facts
Time on Site
2 years ago
Property Type
Residential
Price/Sq.Ft.
$175
Property Details
Schools
Features & Amenities
Location & Map
Map View
Loading map...
Additional Information
Lot & Land
- HardwoodTrees
- OutsideCityLimits
- Subdivision
- Trees
Community & H O A
- CommonGroundsArea
- Clubhouse
- Pool
- TrailsPaths
Tax Information
Parking & Garage
- Attached
- Garage
- Driveway
- GarageDoorOpener
Property Details
Exterior Features
- Architectural
- Shingle
- Deck
- FrontPorch
- Patio
- Deck
- Porch
- Patio
Interior Features
- Dishwasher
- GasOven
- GasRange
- Microwave
- TanklessWaterHeater
- BonusRoom
- Laundry
- Office
- Bathtub
- CeilingFans
- DualSinks
- Fireplace
- HighCeilings
- BathInPrimaryBedroom
- MainLevelPrimary
- QuartzCounters
- SmoothCeilings
- SeparateShower
- WalkInClosets
- WalkInShower
Systems & Utilities
- CentralAir
- ForcedAir
- ForcedAir
- NaturalGas
- ElectricityAvailable
- NaturalGasAvailable
- SepticAvailable
- WaterAvailable
Listing Agent Information
This information is deemed reliable, but not guaranteed. Neither, the Western Upstate Association of REALTORS®, Inc. or Western Upstate Multiple Listing Service of South Carolina Inc., nor the listing broker, nor their agents or subagents are responsible for the accuracy of the information. The buyer is responsible for verifying all information. This information is provided by the Western Upstate Association of REALTORS®, Inc. and Western Upstate Multiple Listing Service of South Carolina, Inc. for use by its members and is not intended for the use for any other purpose. Information is provided for consumers' personal, non-commercial use, and may not be used for any purpose other than the identification of potential properties for purchase. The data relating to real estate for sale on this Web site comes in part from the Broker Reciprocity Program of the Western Upstate Association of REALTORS®, Inc. and the Western Upstate Multiple Listing Service, Inc.
You Might Also Like...
Interested in selling in Montague Lakes?


